

Situació: Sant Celoni
Actuació: Obra nova
Any: 2023
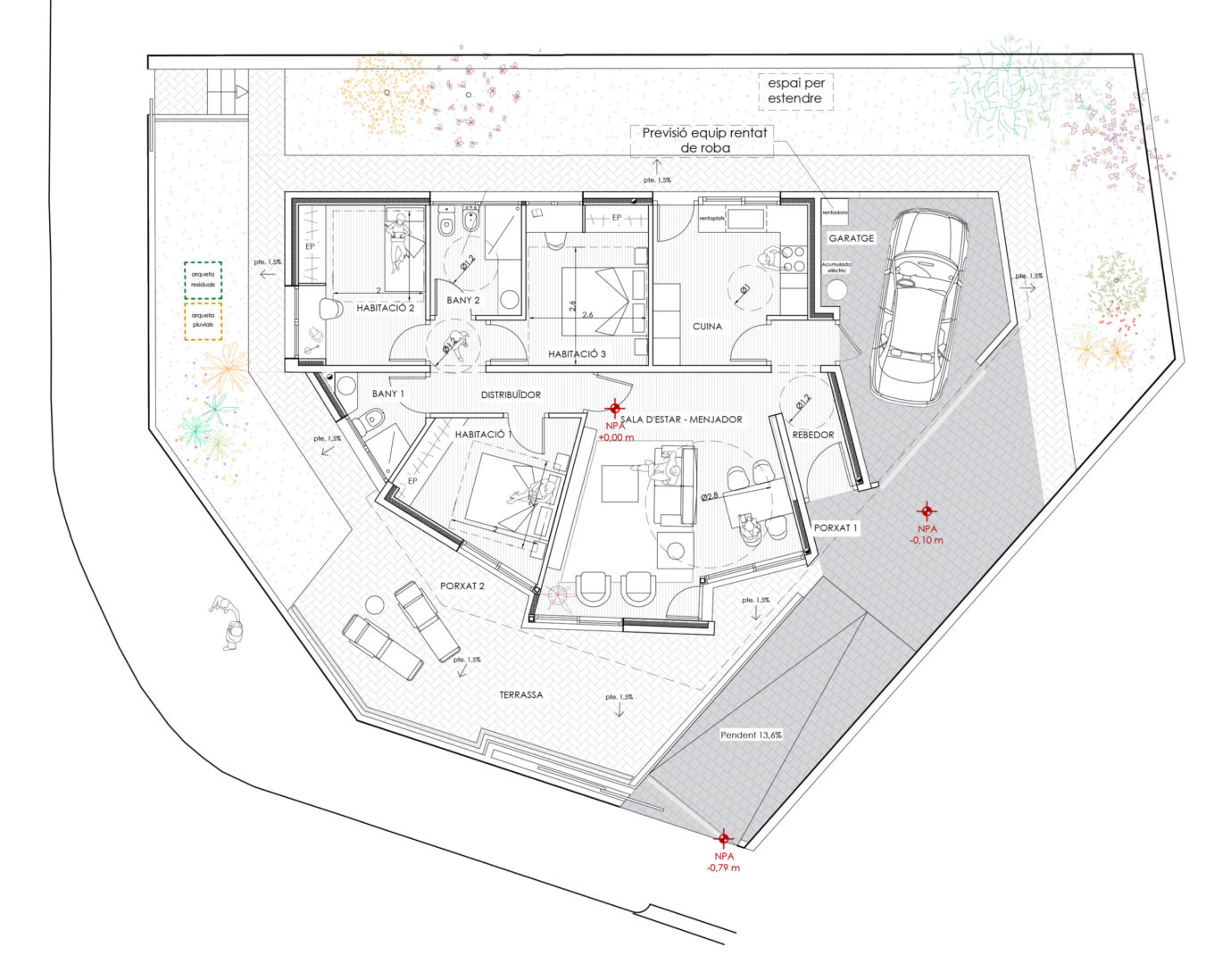
Els clients d’aquest projecte van adquirir una finca que feia xamfrà i que tenia una forma força irregular, condicions que semblaven desfavorables alhora de plantejar-hi un habitatge d’una sola planta. Tanmateix, el disseny de l’edifici ha intentat treure profit d’aquesta configuració. L’habitatge s’ha plantejat a partir d’una volumetria en forma de ventall que va obrint-se cap al paisatge, qüestió que permet aprofitar al màxim la superfície del terreny.






