
Situació: Lleida
Actuació: Obra nova
Any: 2019-2021
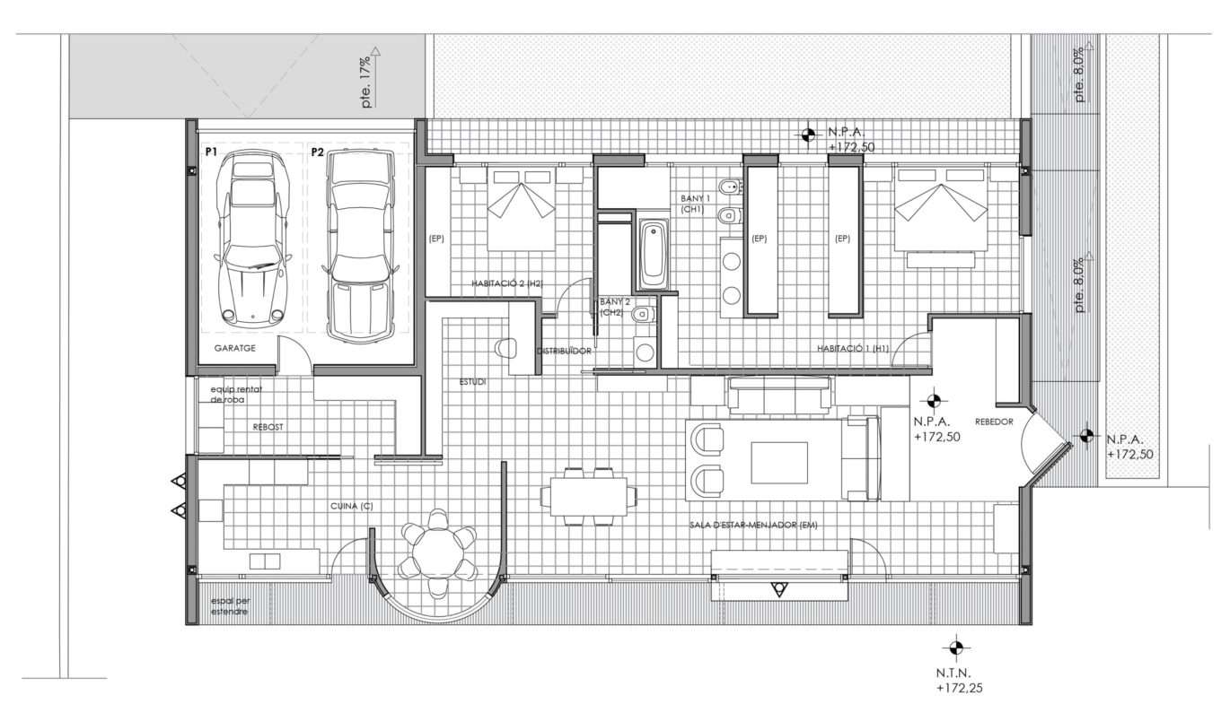
Aquest projecte es resol a partir d’un volum prismàtic que juga amb la incorporació de tres elements geomètrics: el rectangle, el triangle i la circumferència. La configuració d’aquests elements, a més, s’emfatitza a partir de la inclusió d’uns grans voladissos longitudinals.
Pel que fa a l’interior, l’habitatge s’estructura a partir d’un mur central que divideix les zones de dia i de nit. El programa de nit gaudeix d’obertures puntuals i reduïdes, adaptades al ritme més fragmentat dels espais. El programa de dia, per contra, gaudeix de grans finestrals encarats al jardí, accentuant el caràcter diàfan de l’espai.



















