
Situació: Sant Celoni
Actuació: Reforma i remunta d’edifici
Any: 2021 – en construcció
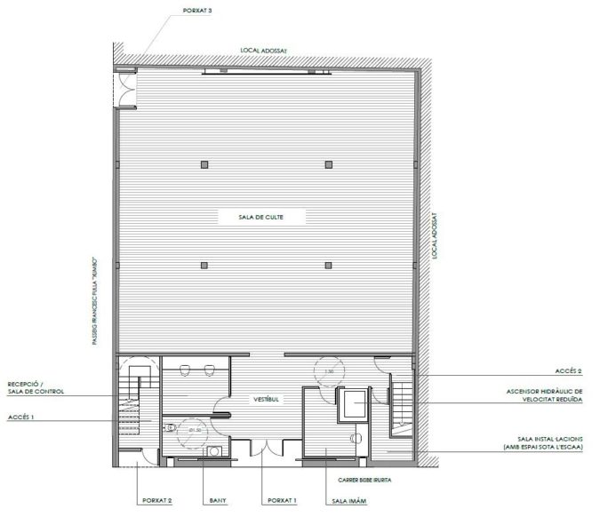
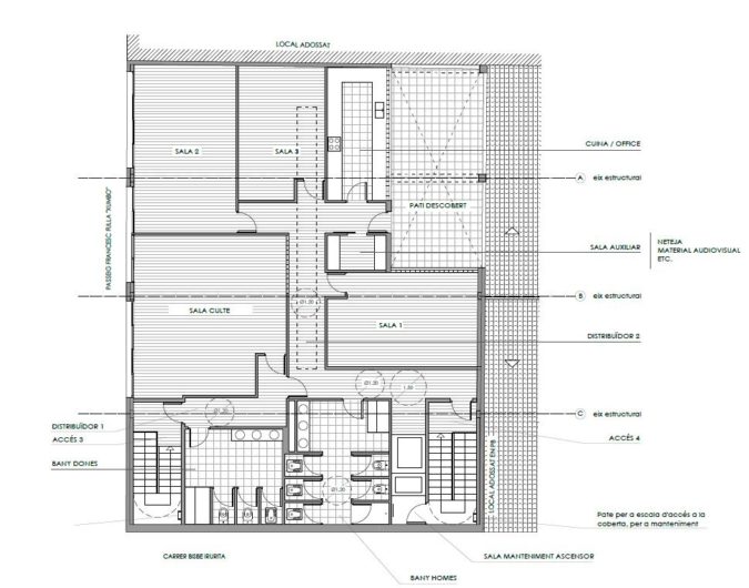
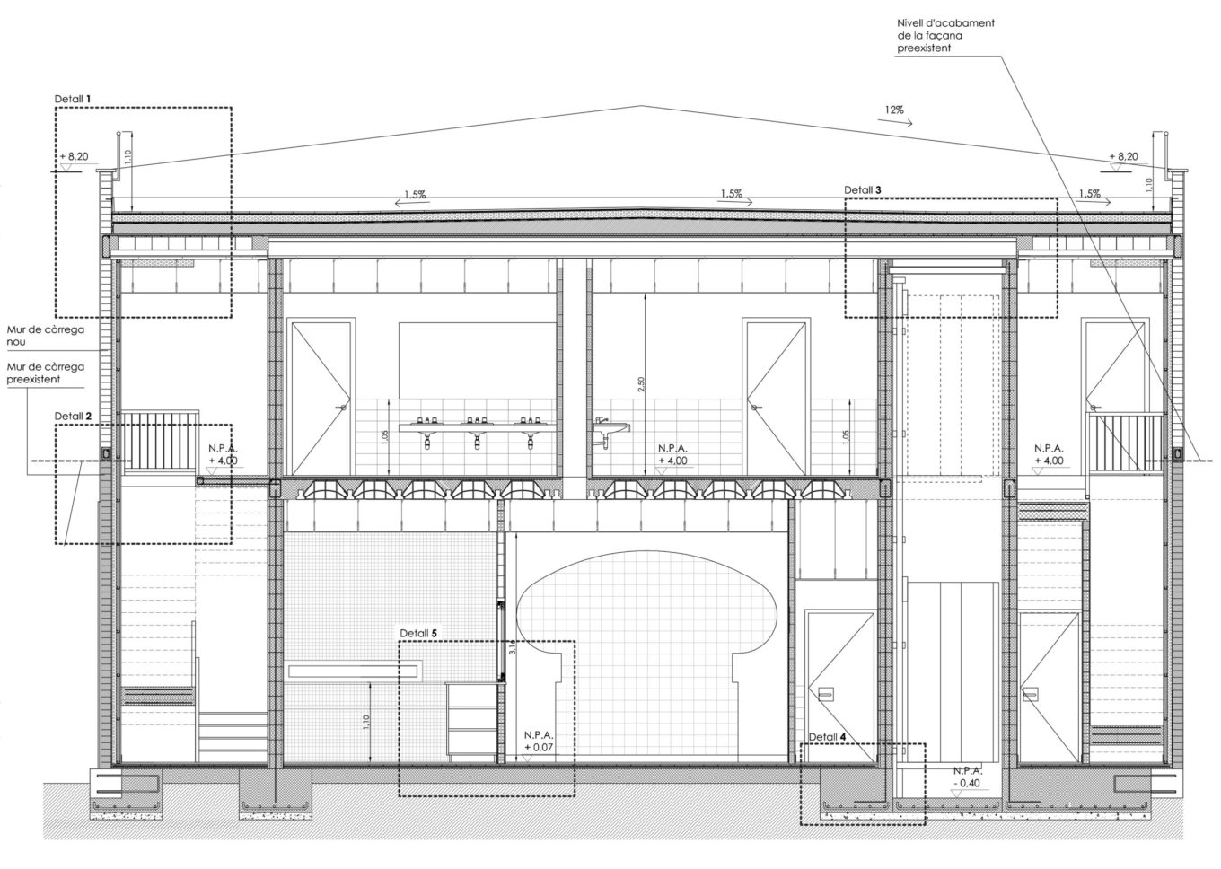
Aquest projecte es basa en la reforma i remunta d’una nau preexistent per acollir el nou ús d’escola d’estudis islàmics amb oratori.
En aquesta intervenció ha pres molta importància la decoració dels espais i la simbologia dels elements arquitectònics, considerant el caràcter religiós de l’edifici. A les façanes hi predominen les simetries i l’emmarcat d’obertures a partir de mosaics de peces hidràuliques, disseny que s’ha completat amb la incorporació de dues torres verticals, símbols essencials de la cultura àrab.
Plànols
Obra



















