
Situació: Jorba
Actuació: Remodelació i ampliació
Any: 2022
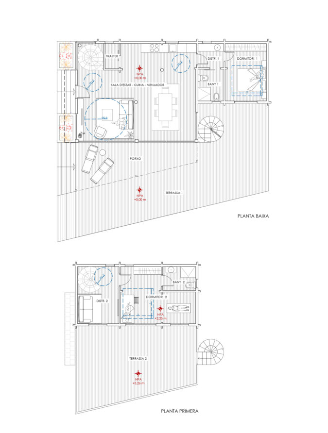
Aquest projecte planteja la remodelació i l’ampliació d’un habitatge construït a partir d’entramats lleugers de fusta. La intervenció, que s’executarà seguint el mateix sistema constructiu, proposa re-configurar la planta baixa per poder ampliar la zona de dia. Per fer-ho possible, es planteja re-ubicar l’escala interior i enderrocar part dels tancaments preexistents.
La intervenció també proposa la construcció d’un nou porxat i d’una plataforma sobre el jardí per tal d’establir una millor relació entre l’interior i l’exterior de l’habitatge.
Plànols
Estat reformat














