
Situació: Castelldefels
Actuació: Reforma i ampliació d’habitatge
Any: 2016-2017
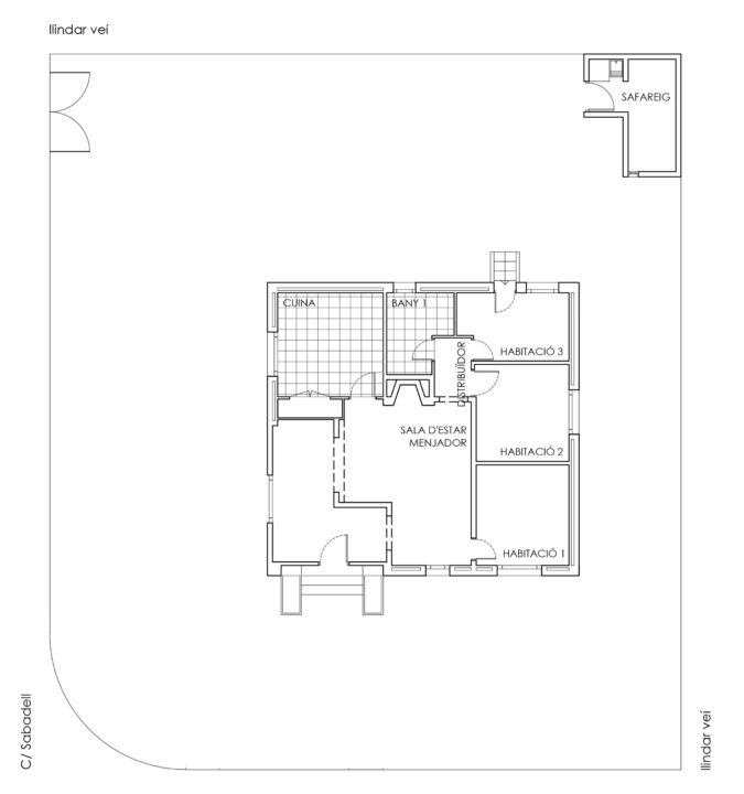
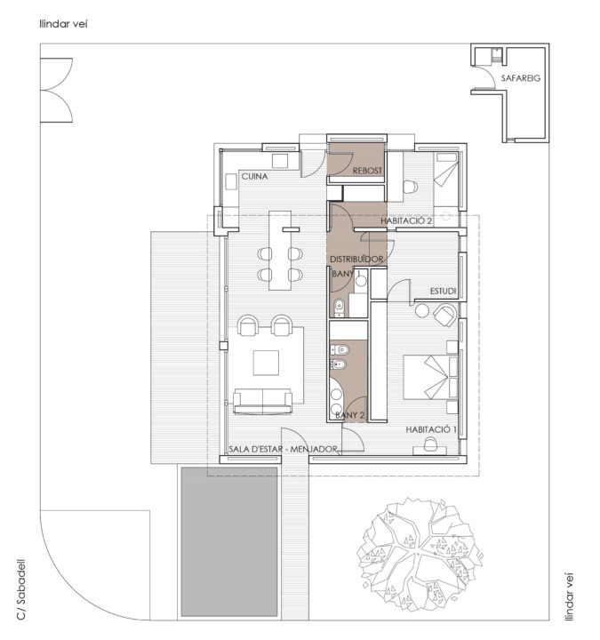
Els clients d’aquest projecte van adquirir un habitatge construït als anys 60 amb la idea de reformar-lo. L’edifici presentava una distribució força fragmentada i atapeïda, mentre que ells volien espais oberts i força diàfans. El projecte, doncs, planteja la reforma i ampliació d’aquest habitatge, modificant radicalment l’essència del seu interior.
En aquest projecte ha pres molta importància el disseny de la coberta. La nova distribució gira entorn d’un nucli central de serveis, però la configuració de l’estructura d’aquesta coberta ha permès que hi hagi una relació visual entre tots els espais, expressant un joc de fluïdeses i transparències que donen al conjunt un caràcter totalment diàfan.
Plànols
Obra






















