
Situació: Riells i Viabrea
Actuació: Obra nova
Any: 2023
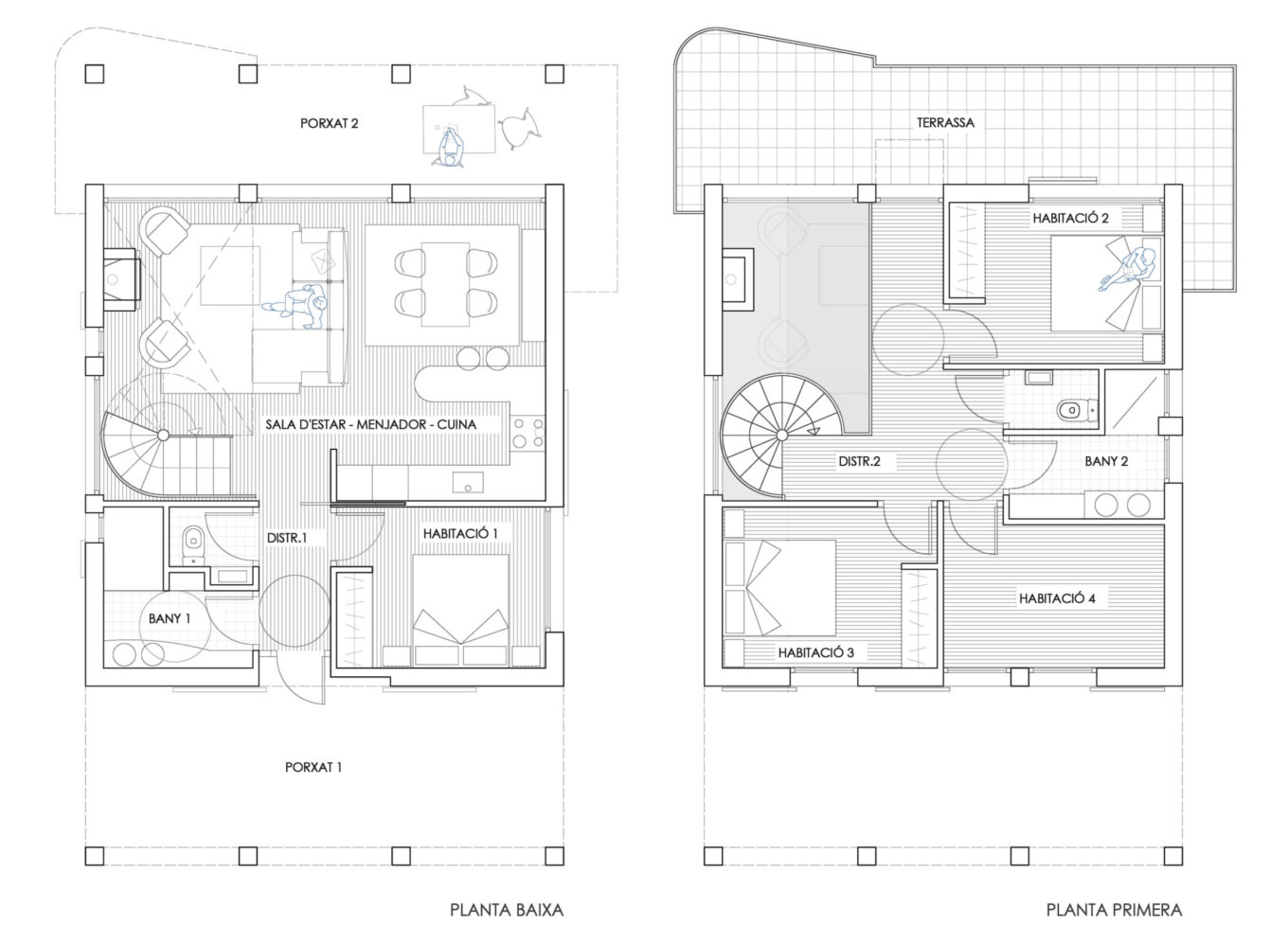
Els clients d’aquest projecte tenien clar que volien construir-se un habitatge amb un cert aire d’espectacularitat i que estigués força connectat amb els espais exteriors.
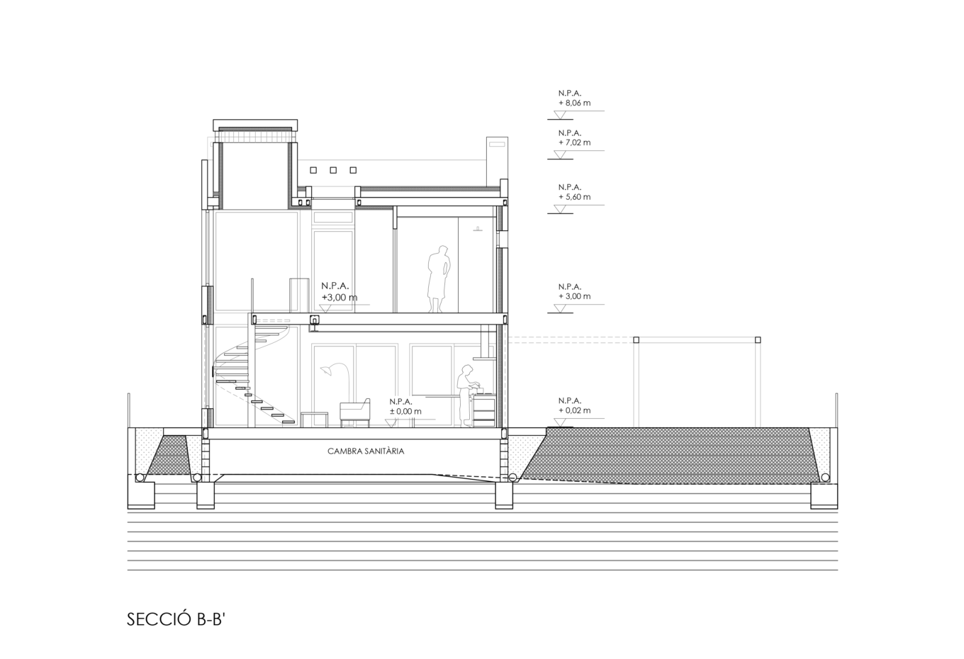
Seguint aquestes premisses, la vivenda s’ha plantejat a partir d’un volum quadrangular de dos nivells que es connecten entre sí mitjançant un espai a doble alçada. D’aquest espai en destacaran, sobretot, l’entrada de llum natural i l’escala de cargol que remata una de les cantonades.
El conjunt de l’edifici queda emmarcat per dos grans porxats presidits per grans columnates. Aquests elements donaran un caràcter majestuós a l’edifici i serviran de filtre entre l’interior i l’exterior.









