


Situación: La Pobla de Segur
Actuación: Reforma, ampliación y consolidación de edificio
Año: 2015
Proyecto de reforma, ampliación y consolidación de la masía El Violí para habilitarlo como un nuevo establecimiento de turismo rural.
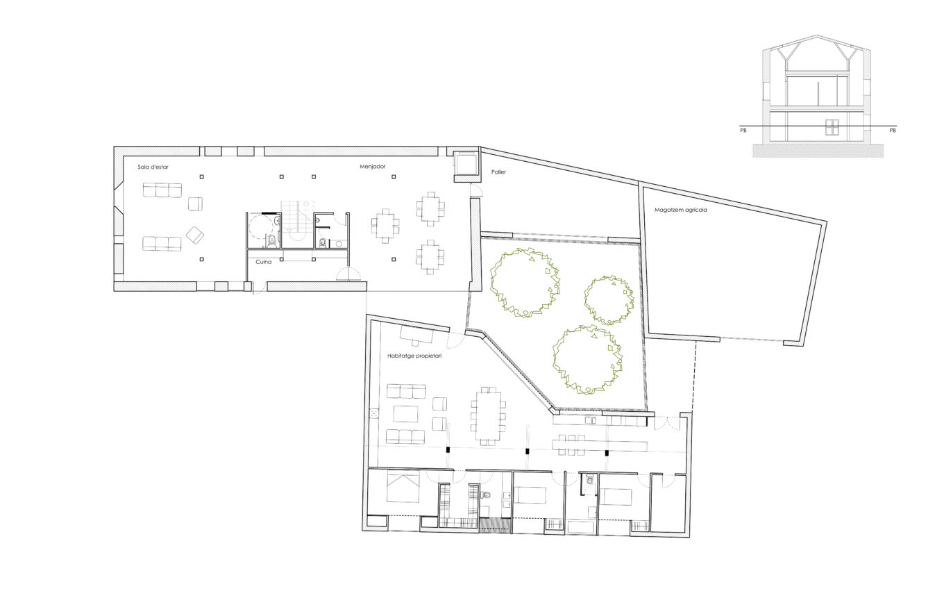
La masía original estaba configurada por un conjunto de cuatro construcciones construidas alrededor de un patio central, quedando vinculadas a la explotación agrícola del terreno. Cuando esta actividad se dejó, las edificaciones quedaron en desuso y se inició su proceso de degradación.
El proyecto, pues, plantea recuperar y consolidar estos edificios a partir de una propuesta que plantea diferentes tipos de actuaciones:
En el edificio principal, configurado en tres plantas, se sitúan los espacios propios de la actividad rural: en las plantas baja y segunda se ubican los espacios de uso común (comedor, cuarto de estar, cocina), mientras que en la planta primera se ubican las habitaciones de los huéspedes.
En los edificios secundarios, configurados en una sola planta cada uno de ellos, se sitúan la residencia privada del propietario de la finca, el pajar y un almacén agrícola.











