Situación: Sant Celoni
Actuación: Obra nueva
Año: 2024
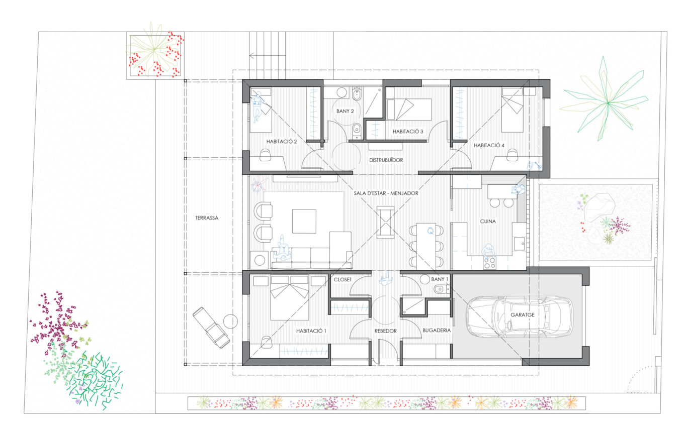
Para el diseño de este nuevo proyecto, se ha planteado un volumen de una sola planta que distribuye el programa interior a través de dos piezas rectangulares que rodean una pieza central: el espacio comunitario del hogar.
Esta pieza, donde se sitúa la zona de día, se plantea a doble altura y a partir de paramentos transparentes que permiten una continuidad visual entre las diversas zonas de la parcela. En este espacio toma una vital importancia la chimenea, proyectada a modo de prisma cuadrangular, que enfatiza el carácter central de la vivienda y permite que el espacio comunitario adquiera una atmósfera especial.









