Situación: Sant Celoni
Actuación: Obra nueva
Año: 2025
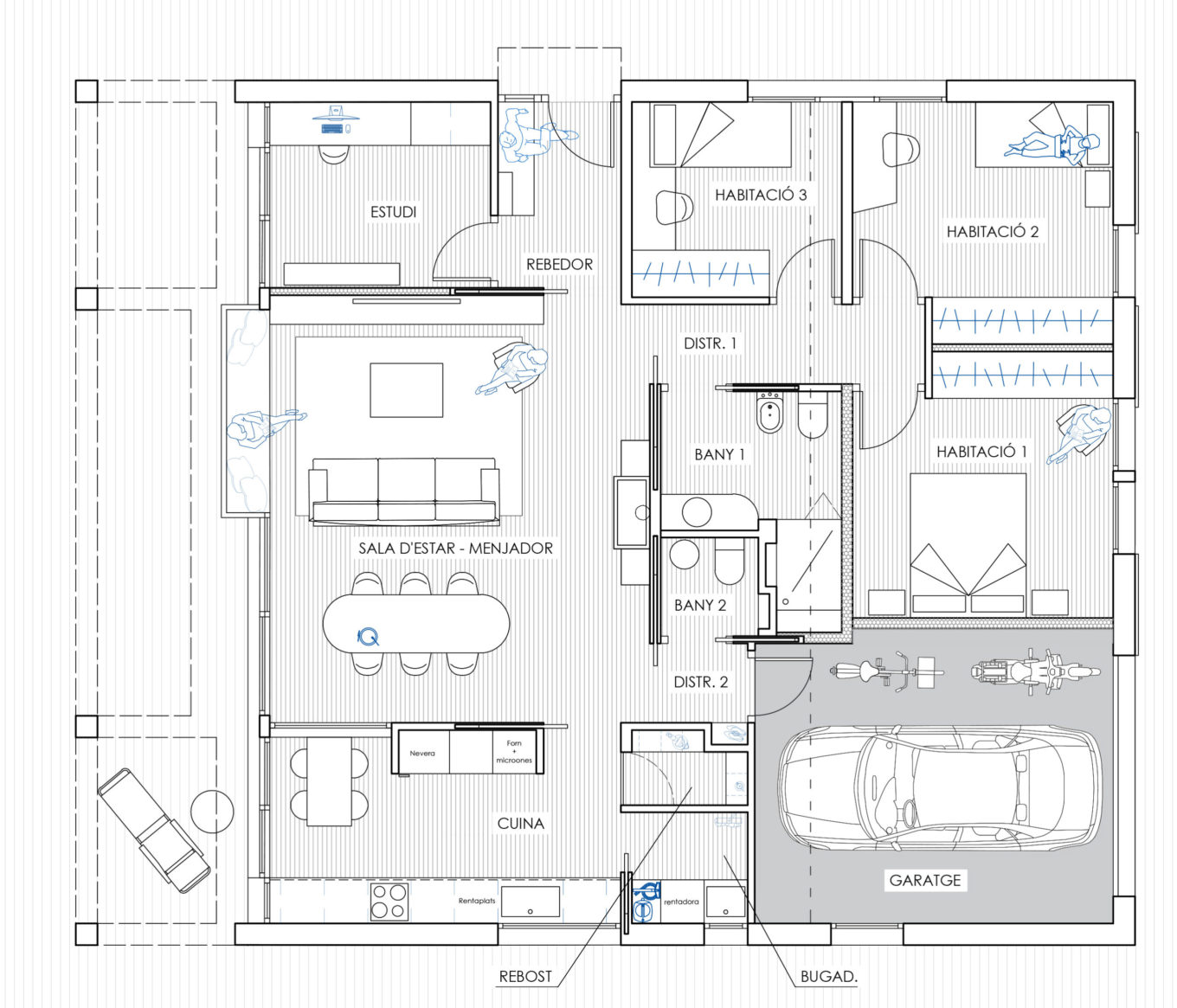
Para los clientes de este proyecto era prioritario que el programa de día de la vivienda quedara relacionado con la parte privada del jardín. En este sentido, el diseño del proyecto se plantea a partir de un volumen cuadrangular, estructurado alrededor de un núcleo central de servicios que separa el programa del inmueble en dos franjas.
Esta idea organizativa también se ha plasmado a la propia volumetría del edificio, enfatizando y dando coherencia compositiva al conjunto. En este diseño, la yuxtaposición de las dos cubiertas inclinadas toma un papel importante ya que, desde esta franja longitudinal, se permitirá iluminar naturalmente los espacios a doble altura del ámbito central de la vivienda.














