
Situación: Lloret de Mar
Actuación: Obra nueva
Año: 2021
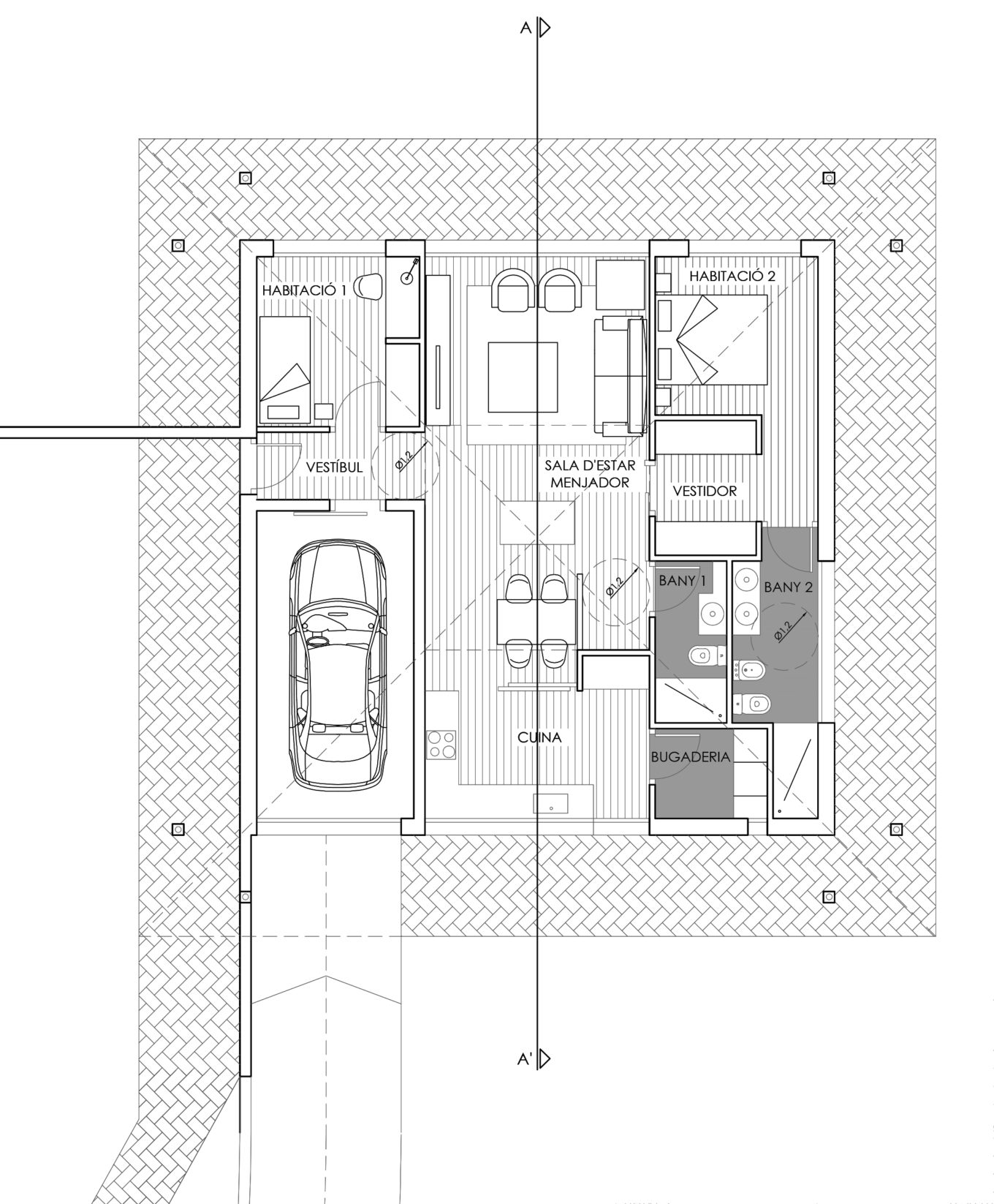
La clienta de este proyecto tenía claro que quería resolver el programa de la vivienda en una sola planta y en la zona más alta de la parcela para disfrutar de las vistas de la costa.
El volumen de la vivienda se ha resuelto a partir de un prisma cuadrangular que queda rematado por una cubierta inclinada a cuatro aguas. Esta configuración simétrica tiene la intención de remarcar el centro de la vivienda, donde se situará la sala de estar. En este sentido, desde el interior, también se ha potenciado este punto neurálgico con el diseño de un salón a doble altura.










