
Situación: Vallgorguina
Actuación: Obra nueva
Año: 2016
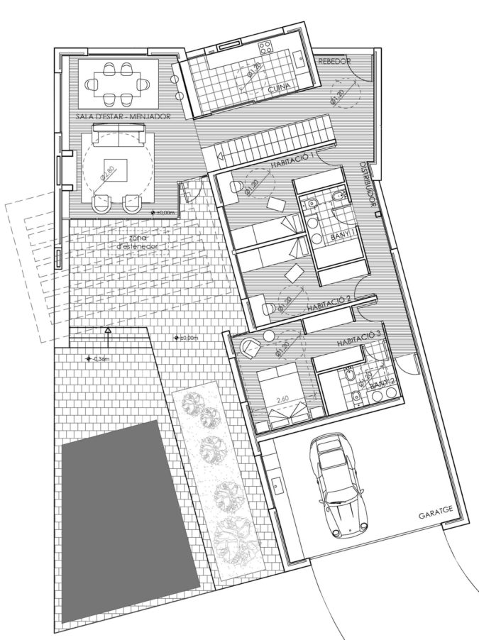
Esta vivienda unifamiliar se ha proyectado a partir de la unión de dos volúmenes que se unen formando una ‘L’ encarada hacia el interior de la parcela. En uno de ellos, rectangular y de una planta, se ubica el programa de noche. En el otro, cuadrangular y de dos plantas, la zona de día y un espacio de uso polivalente.
En el vértice de unión de ambos cuerpos, encontramos dos puntos singulares del proyecto. Orientado a la calle, hay situado el núcleo de acceso a la vivienda. Sin embargo, orientado hacia el jardín, encontramos un gran porche que complementa la zona de recreo exterior y articula elegantemente estos cuerpos.
Para el lenguaje compositivo del conjunto del edificio se propone la combinación de distintos tipos de materiales y texturas que van resaltando los puntos clave del proyecto, donde destacan las grandes aperturas que se abren hacia el jardín.











