
Situación: Vallgorguina
Actuación: Obra nueva
Año: 2023 – en construcción
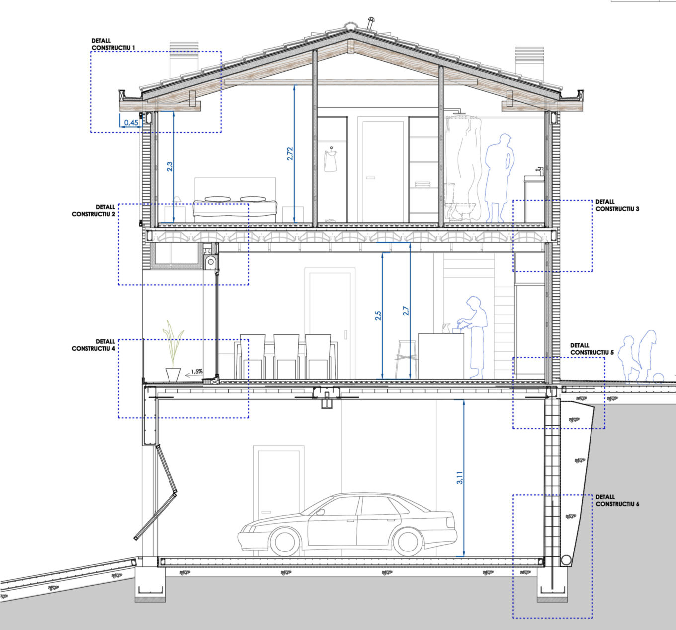
Una vivienda configurada a partir de un volumen compacto de tres niveles que intenta ganar altura en un terreno con bastante pendiente. En este proyecto la planta principal es, sin duda, la gran protagonista de la obra, dado que será el espacio donde la familia pasará la mayor parte del tiempo. Por eso se ha diseñado como un espacio diáfano, abierto hacia las vistas del valle.













