
Situación: Sant Celoni
Actuación: Reforma y cambio de uso
Año: 2022-2023
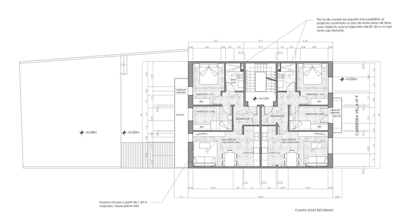
El cliente de este proyecto tenía dos oficinas en desuso en la planta primera de un edificio, por lo que consideró que la mejor opción era convertirlos en dos nuevas viviendas para sacarles un mejor rendimiento. Este proyecto, pues, se ha basado en la reforma y el cambio de uso de los espacios para adaptarlos a dos nuevas acogedoras viviendas que potencian el pavimento hidráulico del edificio original.
Esta transformación, además de permitir ubicar dos nuevas viviendas en una zona muy céntrica del municipio, ha permitido plantear una distribución de las viviendas adaptada al programa de necesidades del cliente.








