
Situació: Breda
Actuació: Reforma i ampliació d’edifici
Any: 2022
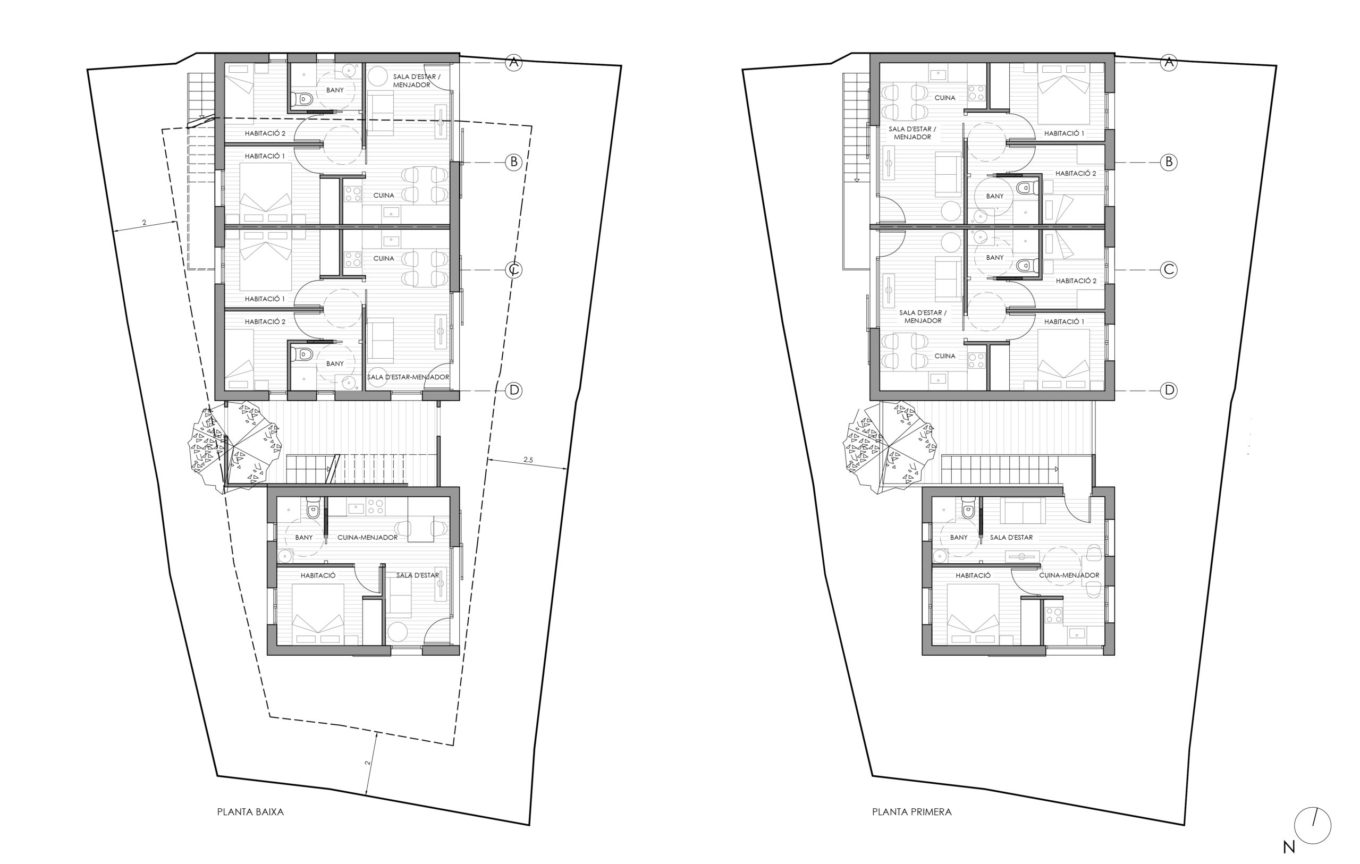
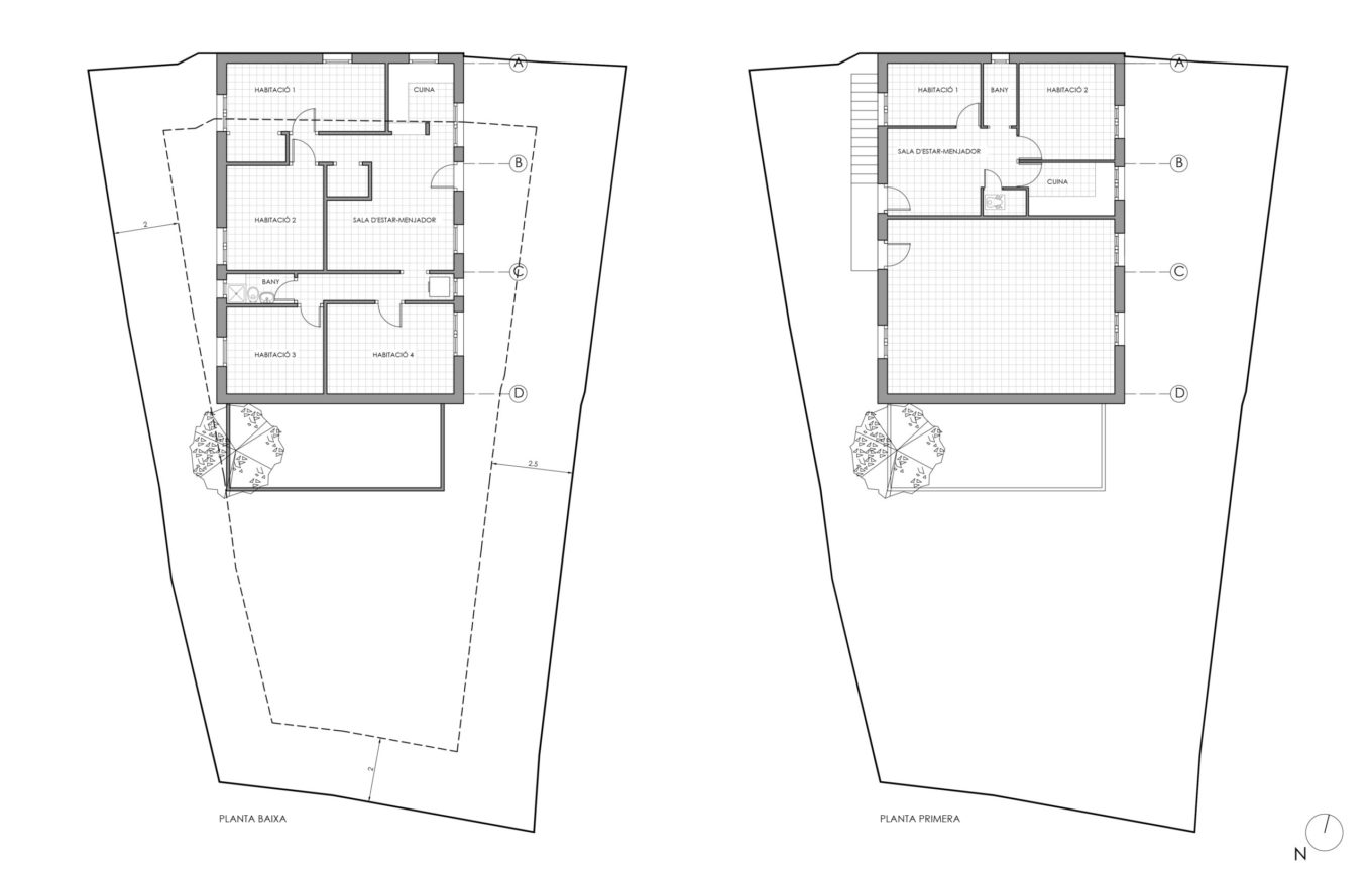
Reforma i ampliació d’un antic edifici per acollir un nou conjunt de sis apartaments. El projecte, a banda de consolidar i reforçar l’estructura de l’edifici, actualment força deteriorada, també aprofitarà per reestructurar i unificar l’aspecte compositiu de tot el conjunt de la construcció.









