Situació: Campins
Actuació: Obra nova
Any: 2022
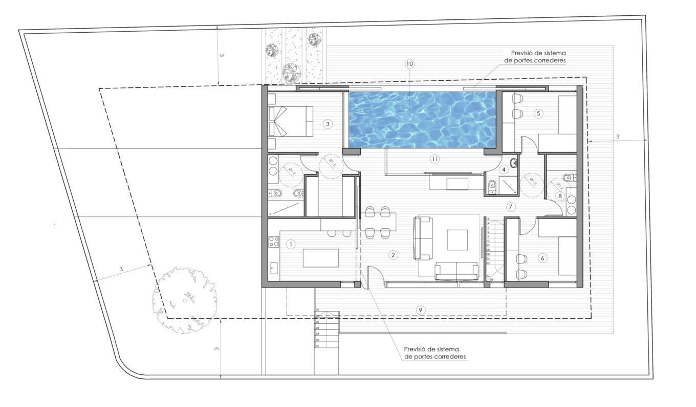
El disseny d’aquest projecte s’ha plantejat al voltant d’un espai central que acull la sala d’estar, plantejat com un àmbit força transparent. La resta del programa s’adossa a aquest espai a partir de dues peces prismàtiques, acollint una distribució força més fragmentada.
Tot i que la distribució del programa ja estableix una diferenciació entre la zona de dia i de nit, aquesta distinció també s’emfatitza a nivell volumètric, ja que l’espai central, projectat a doble alçada, es potencia amb la incorporació d’una coberta inclinada de fusta.







