Situació: Arenys de Munt

Actuació: Obra nova

Any: 2023 – en construcció

 


 

Aquest projecte es resol a partir d’un volum compacte de formes senzilles i modernes que s’encara a les vistes de la vall. La seva implantació al terreny ha estat un factor clau alhora de definir el projecte, ja que la topografia de la parcel·la tenia força pendent.

Gràcies a l’estudi d’aquesta implantació, hem pogut plantejar una zona d’esbarjo a la part alta de la parcel·la, àmbit des d’on es permetrà l’accés a la coberta per permetre’n el seu aprofitament.

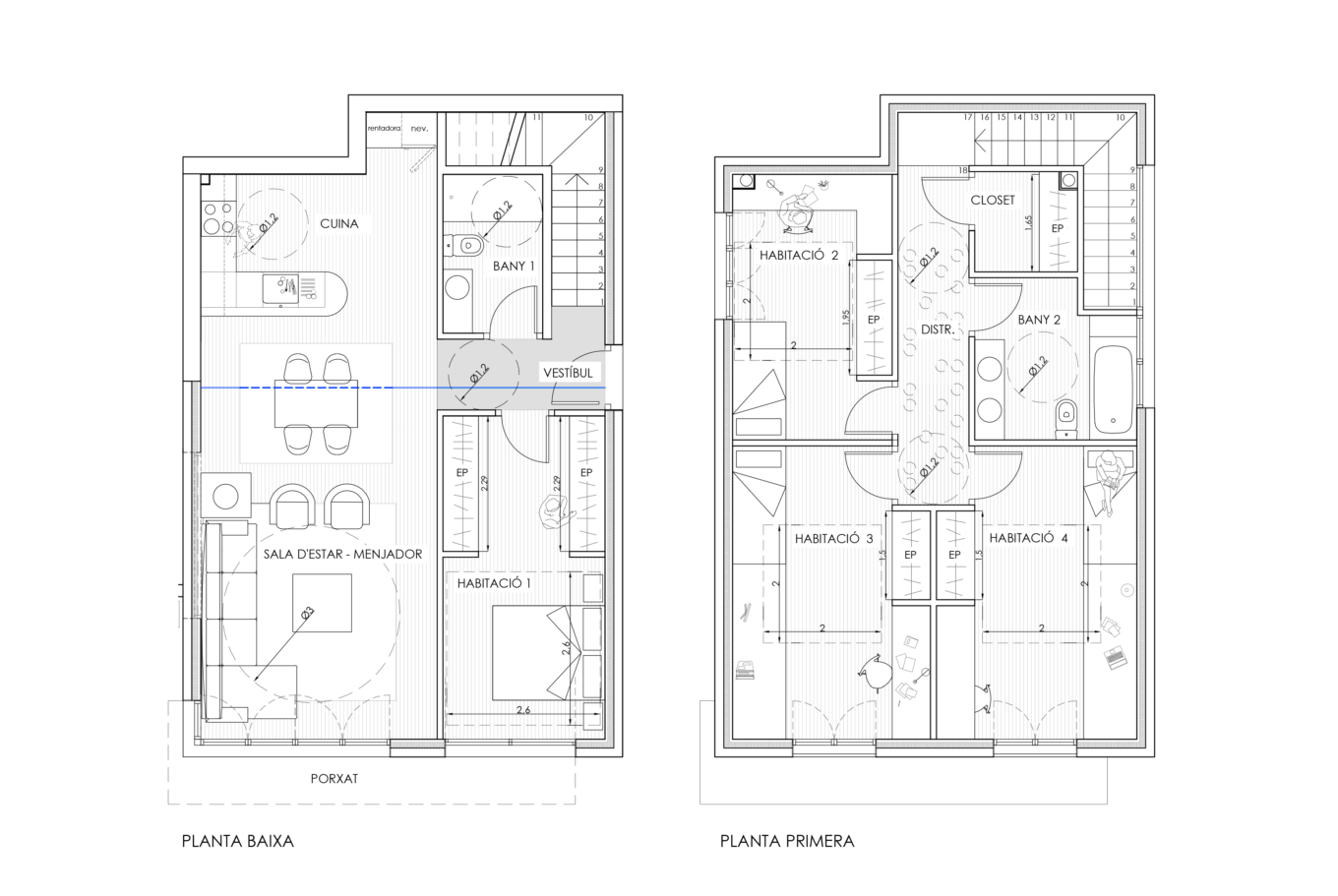
Plànols

Obra