Situació: Vilanova

Actuació: Reforma d’habitatge

Any: 2016-2017

 


 

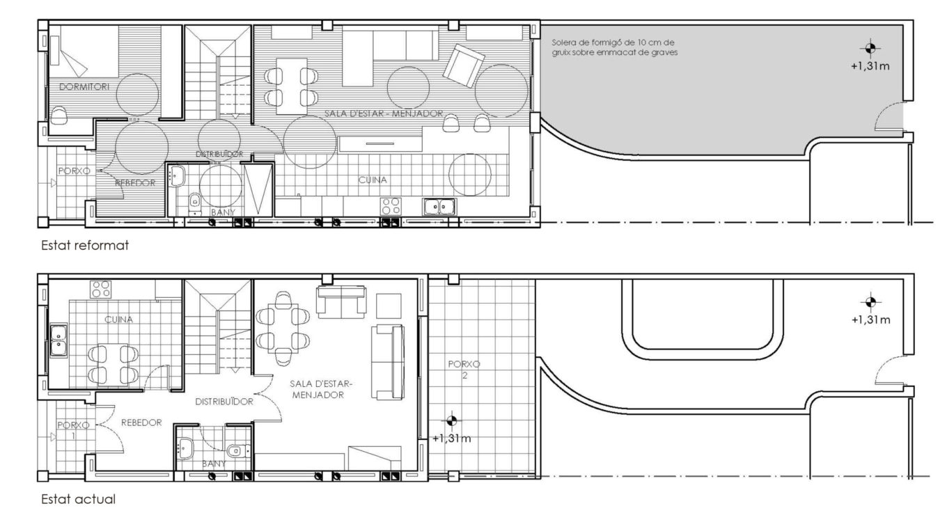
En aquest projecte es planteja la reforma integral d’una de les plantes de l’habitatge per definir un nou programa accessible que s’adapti a la mobilitat d’una cadira de rodes.

L’actuació ha estat possible gràcies a la re-distribució de les estances i a l’ampliació de l’habitatge per l’àmbit de l’antic porxo, garantint la versatilitat dels nous espais. A més, s’ha aprofitat la intervenció per plantejar un nou disseny dels espais interiors, donant-los un llenguatge més modern i atractiu.

Plànols

Obra