
Situació: Sant Celoni
Actuació: Reforma i rehabilitació d’edifici
Any: 2023
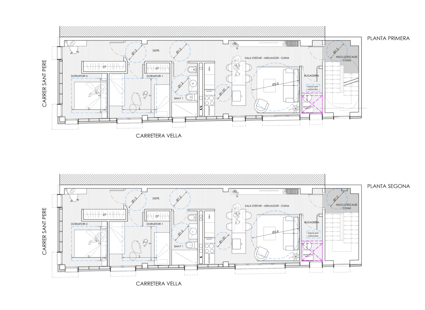
Les plantes superiors d’aquest edifici havien albergat oficines comercials, però ara ja feia anys que estaven en desús. És per això que es va plantejar l’opció d’ubicar-hi dos nous habitatges, aprofitant la seva immillorable situació al centre del municipi.
El projecte, a banda de replanteja la reforma i la rehabilitació dels espais, també aprofita per re-configurar les façanes de l’edifici a partir del sistema Steel Frame, una solució que permetrà millorar notablement el rendiment dels tancaments.














