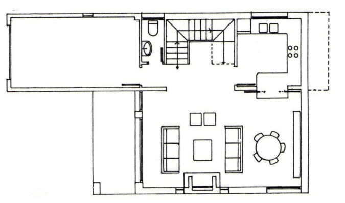
Situació: El Masnou

Actuació: Obra nova

Any: 2002

 


Plànols

Obra