
Situación: Sant Celoni
Actuación: Reforma y rehabilitación de edificio
Año: 2023
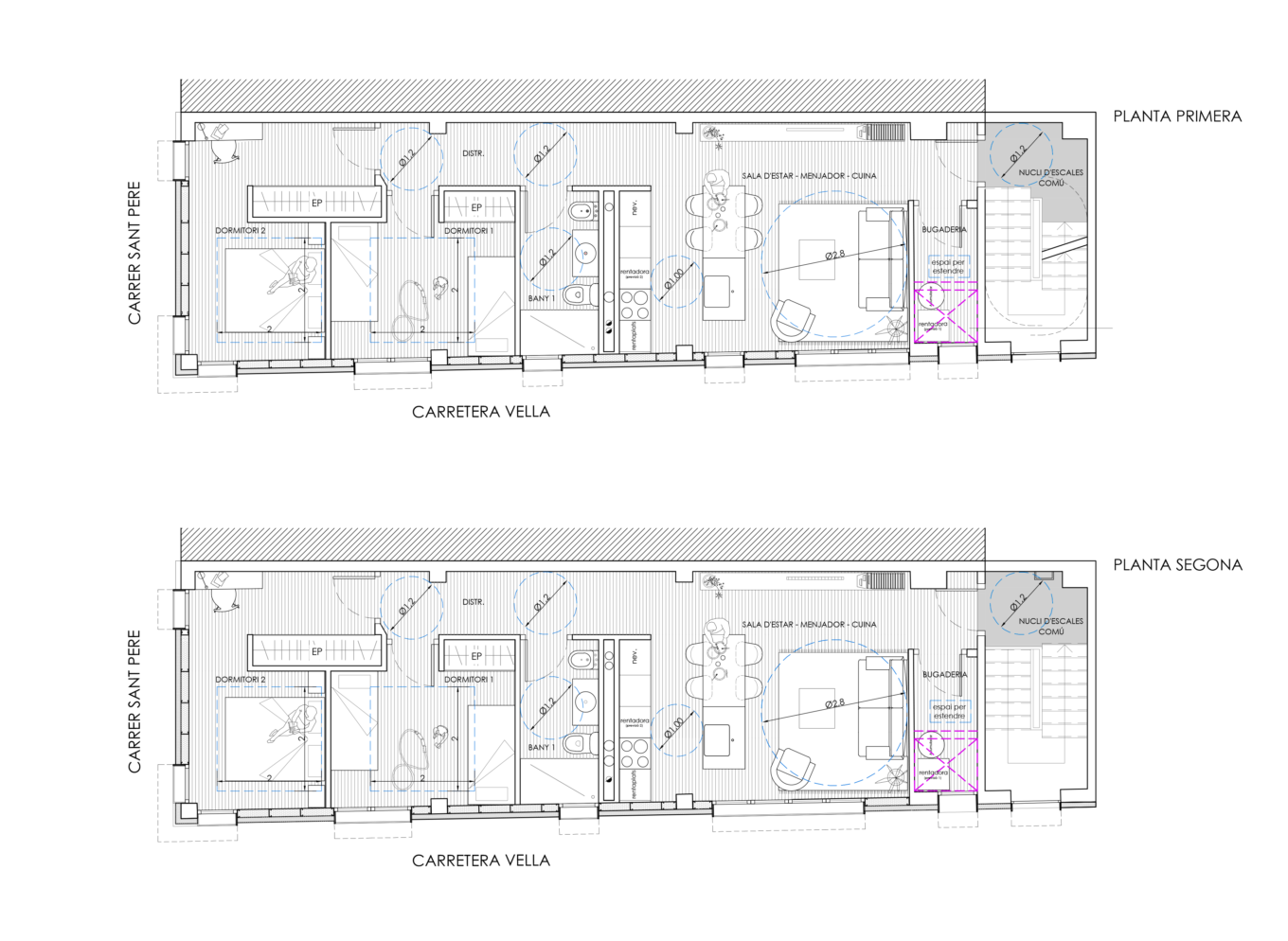
Las plantas superiores de este edificio habían albergado oficinas comerciales, pero ahora ya hacía años que estaban en desuso. Es por eso que se planteó la opción de ubicar dos nuevas viviendas, aprovechando su inmejorable situación en el centro del municipio.
El proyecto, además de replantear la reforma y la rehabilitación de los espacios, también aprovecha para re-configurar las fachadas del edificio a partir del sistema Steel Frame, una solución que permitirá mejorar notablemente el rendimiento de los cerramientos.


















