Situación: Vilalba Sasserra
Actuación: Obra nueva
Año: 2024
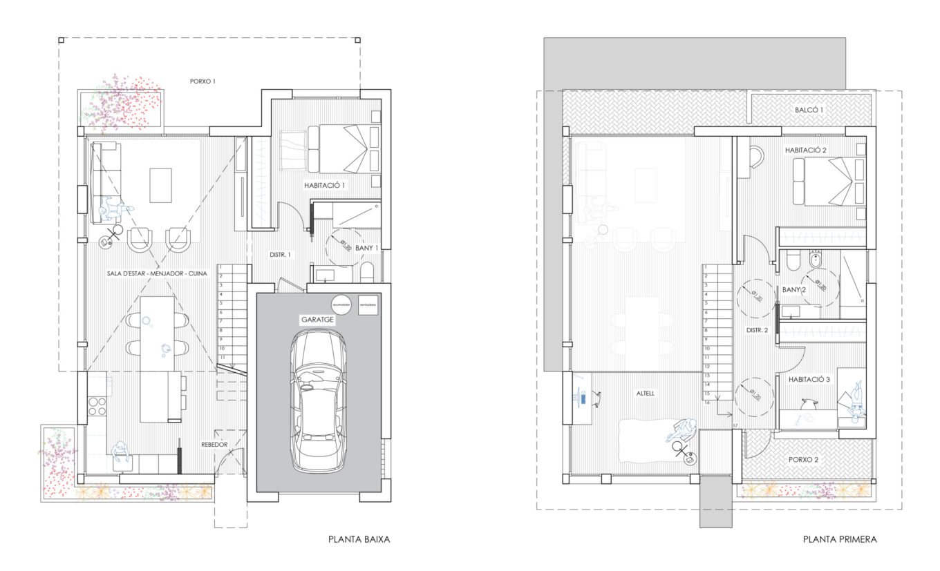
Diseño de una vivienda configurada en un volumen prácticamente cuadrangular de dos plantas.
Aunque el edificio aparezca de forma contundente, los espacios interiores que configuran el programa de día (sala de estar, comedor y cocina), se han proyectado a doble altura, de modo que el espacio común resultante disfruta de una atmósfera abierta y diáfana que puede disfrutarse desde distintos puntos de la vivienda.
Dada esta configuración volumétrica, en la fase de proyección ha tomado mucha importancia el diseño de las aberturas de la fachada y su composición arquitectónica, para conseguir que el espacio principal de la vivienda tenga un carácter único.












