
Situación: Hostalric
Actuación: Reforma de vivienda
Año: 2014
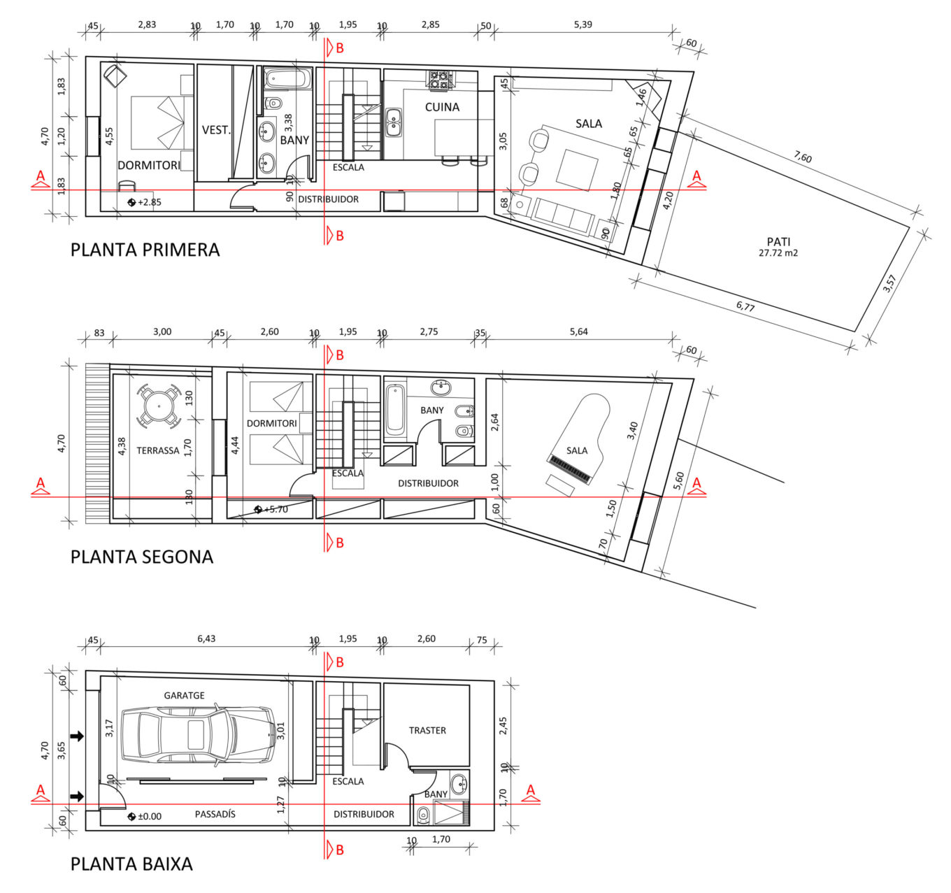
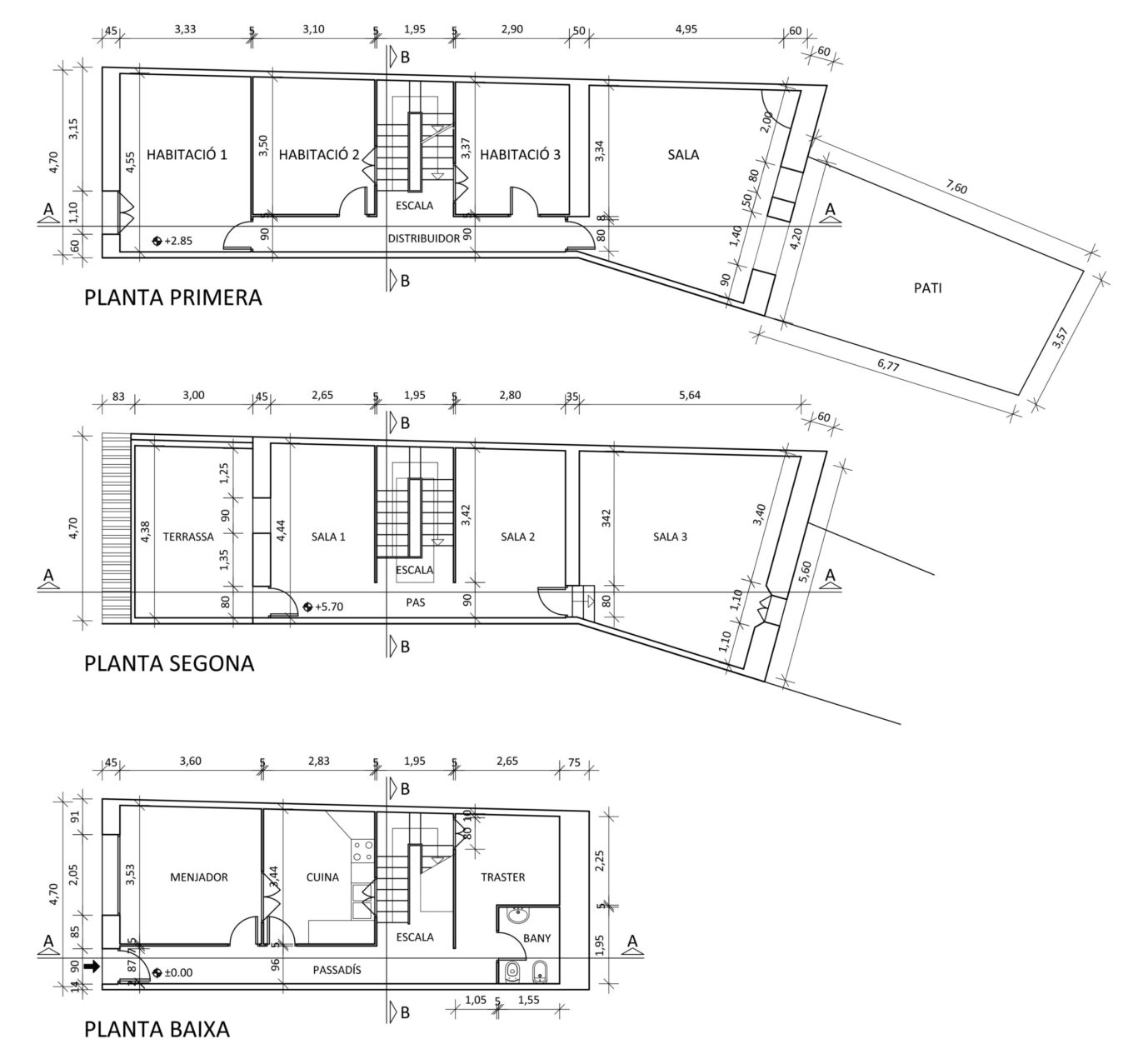
Este proyecto ha planteado la reforma integral del interior de una vivienda para adaptarla al nuevo programa deseado por sus propietarios. Del conjunto de las actuaciones, destacan:
Por un lado, la reubicación de la cocina. En la edificación preexistente, esta se situaba en la planta baja, quedando totalmente desvinculada de la sala de estar. Con la reforma se plantea unificar dichos espacios, planteando un diseño abierto y diáfano.
Por el otro, el diseño de una suite con vestuario, desde donde también se plantea el acceso a un baño.









