Situación: Santa Maria de Palautordera
Actuación: Reforma y ampliación
Año: 2025
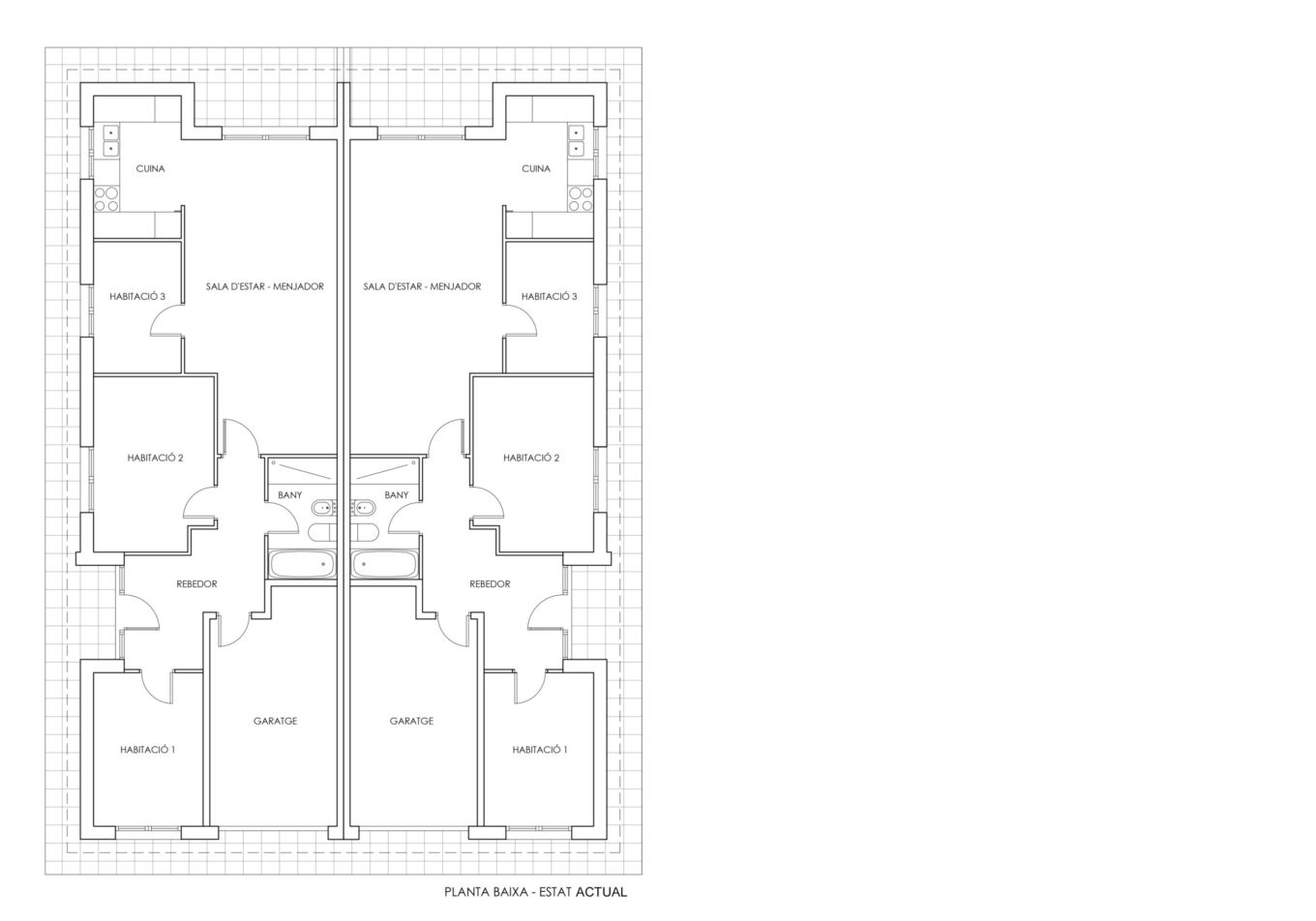
Este proyecto parte de dos viviendas pareadas preexistentes, simétricas, configuradas en una sola planta. En concreto, la intervención plantea la reforma y la remonta de una planta del edificio para ampliar su programa habitable y poder destinarlo a familias numerosas.
En la planta baja se han readaptado parte de los ámbitos preexistentes para dar una mayor amplitud a las zonas de día, planteando espacios más diáfanos y mucho más prácticos. En el proyecto, la situación de la nueva escalera ha sido un elemento clave para optimizar la distribución de la planta primera, dónde se han ubicado las habitaciones y una gran suite, completando el programa con grandes terrazas que permiten disfrutar de un agradable espacio intermedio.
En términos de diseño, la propuesta ha mantenido la volumetría y los acabados de la planta baja, ejecutados con muros de obra vista. En cuanto al nuevo volumen de la planta primera, se ha optado por un diseño de formas prismáticas, sencillas y de tonalidades neutras para evitar entrar en conflicto con el carácter ya marcado de la preexistencia, dando así un nuevo estilo a todo el conjunto.













