Situación: Sant Julià de Llor-Bonmatí
Actuación: Obra nueva
Año: 2025
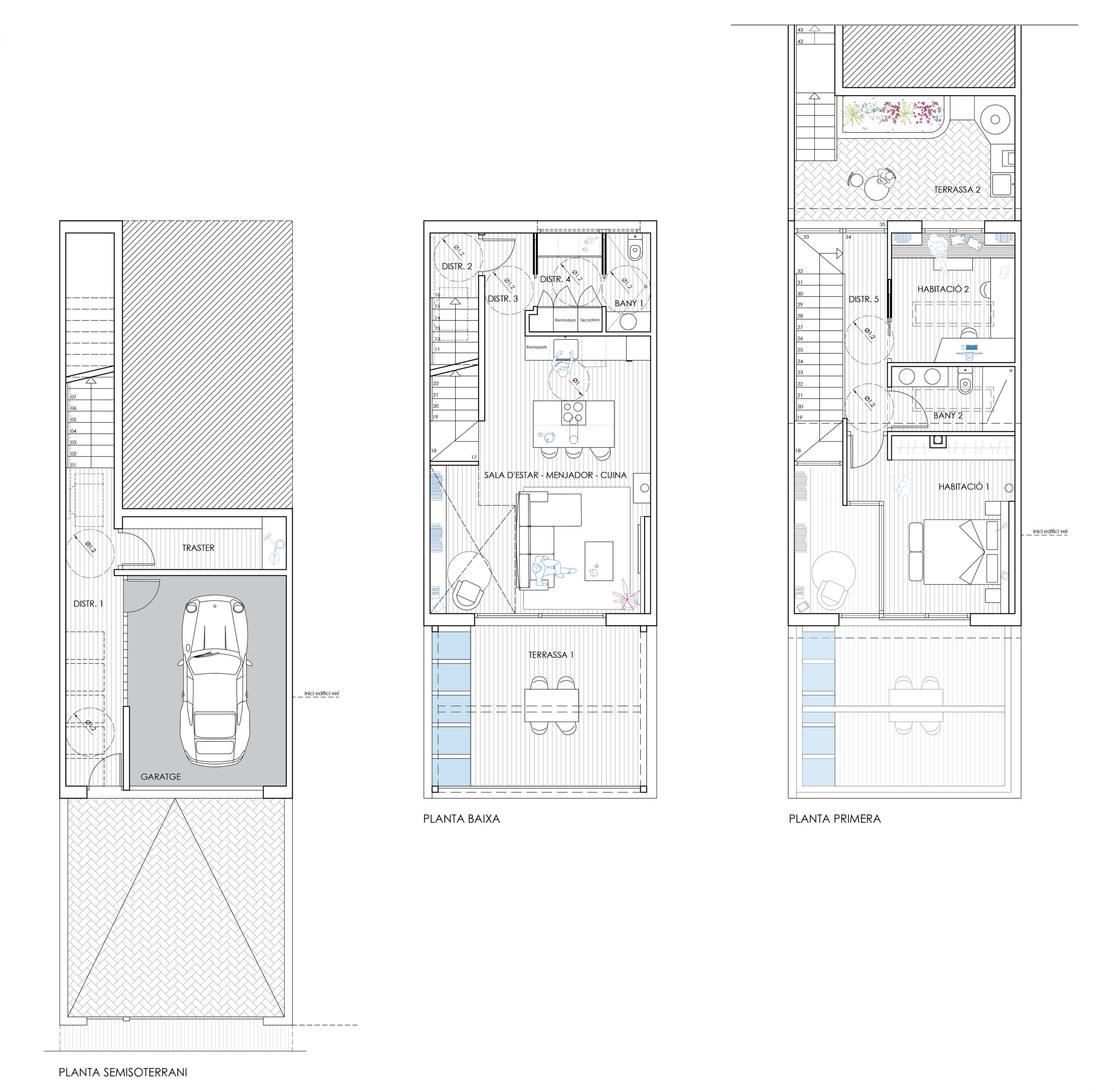
El presente proyecto plantea la ejecución de una vivienda entre medianeras en un terreno con bastante desnivel.
Esta implantación ha ocasionado que gran parte de los muros perimetrales queden soterrados o en régimen de medianería. Por esta razón, el diseño del proyecto incorpora espacios a doble altura, lucernarios y pozos de luz para maximizar la iluminación entre los diferentes ámbitos. Con esta solución, de hecho, también se ha buscado maximizar la relación visual entre los espacios, creando una sensación de amplitud y unidad a la vivienda.
El programa de la casa se ha proyectado con espacios abiertos que potencian estas ideas mediante un estilo industrial que, con su estética cruda (con elementos como el ladrillo visto, el metal y la madera), aportan un carácter único y sofisticado a todo el conjunto.






