
Situación: Llinars del Vallès
Actuación: Obra nueva
Año: 2016
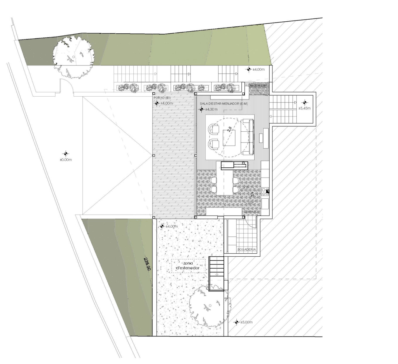
En este proyecto la topografía ha sido un factor clave a la hora de diseñar la volumetría del edificio.
La vivienda se ha resuelto en un volumen rectangular que distribuye el programa de día y de noche entre sus dos plantas habitables. Aunque el edificio aparece como un volumen relativamente compacto que va acomodándose en el terreno, en el interior de la vivienda se plantean espacios a doble altura que permiten una comunicación directa entre los distintos espacios del programa.
Este concepto de doble altura también se ha reproducido en la fachada principal del edificio gracias al diseño de un porche longitudinal que enmarca la vivienda y protege las grandes oberturas proyectadas en esta zona.
Este conjunto volumétrico se enfatiza con los propios materiales de la construcción, la madera y la piedra, que se combinan para dar un mayor carácter al edificio.










