
Situación: Montjuïc, Barcelona
Actuación: Recalce de vivienda
Año: 2016 – 2017
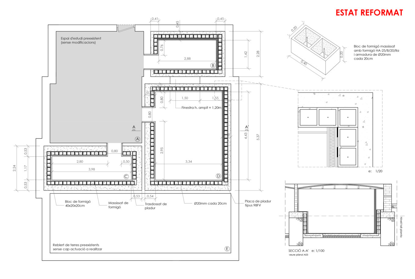
El presente proyecto se basa en la creación de una nueva planta sótano en una vivienda centenaria configurada en dos plantas, con el objetivo de condicionarlo como un nuevo estudio de música.
Esta actuación ha sido posible gracias a la ejecución del recalçament de prácticamente toda la fundamentación del edificio, una operación relativamente compleja que ha permitido vaciar las tierras que había en las cámaras sanitarias para conseguir nuevos espacios accesibles, convirtiendo unos ámbitos originalmente impracticables en unos espacios totalmente aprovechables.
El proyecto también se aprovecha de la configuración original del forjado sanitario, realizado con vuelta catalana. Con el diseño de la iluminación del conjunto de los espacios, se potencia la presencia de esta estructura, consiguiendo una atmósfera acogedora.









