
Situació: Vallgorguina
Actuació: Obra nova
Any: 2020-2022
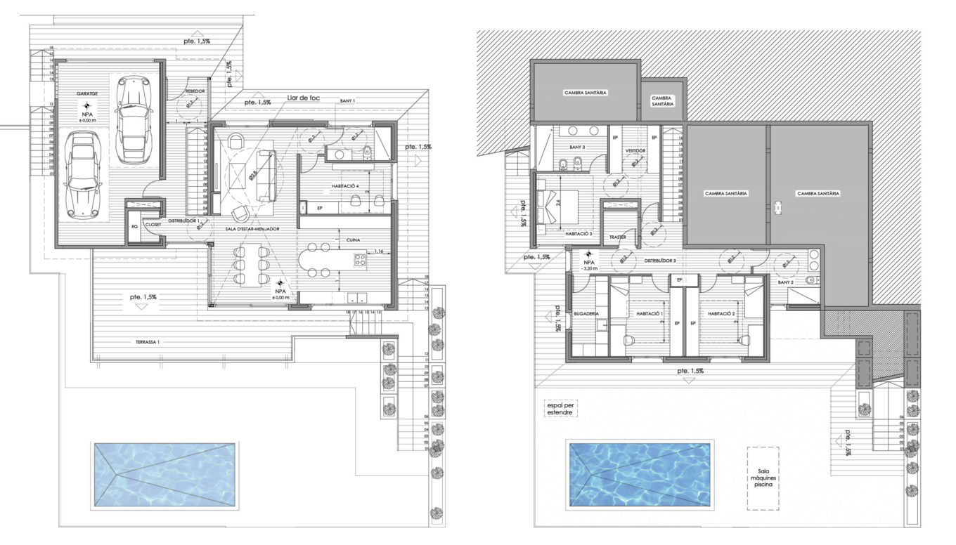
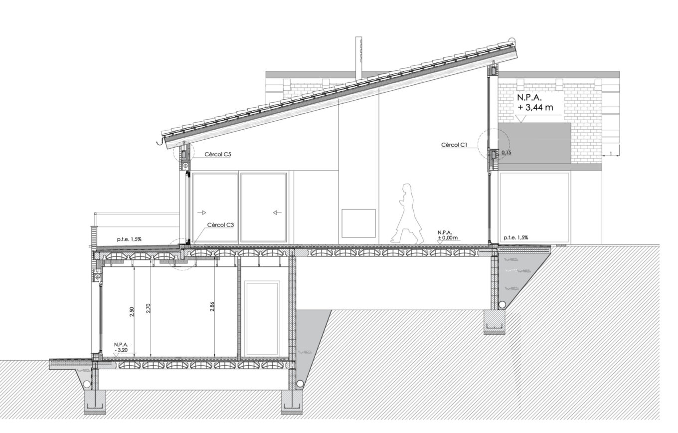
Aquest habitatge s’ha configurat a partir de tres volums que van adaptant-se a la topografia descendent del terreny. Dos d’ells, els que coincideixen amb la zona de dia de l’habitatge, s’han plantejat a doble alçada per donar als espais interiors una atmosfera oberta i diàfana, des d’on es pot gaudir l’acabat de la coberta de fusta.
En el seu conjunt, l’edifici s’ha dissenyat a partir d’un conjunt de línies senzilles que es van emfatitzant gràcies a la juxtaposició dels diferents tipus d’acabats de la façana.















