
Situació: Vallgorguina
Actuació: Obra nova
Any: 2021
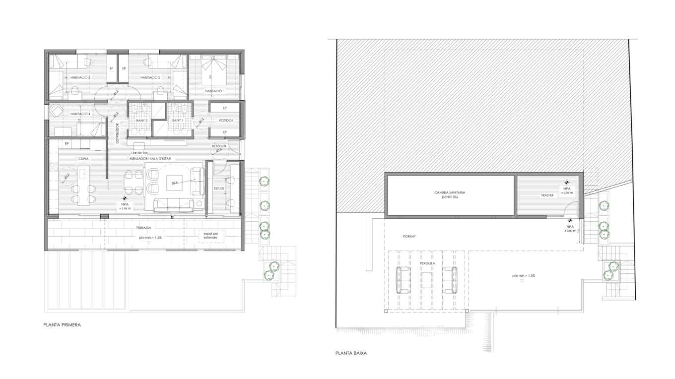
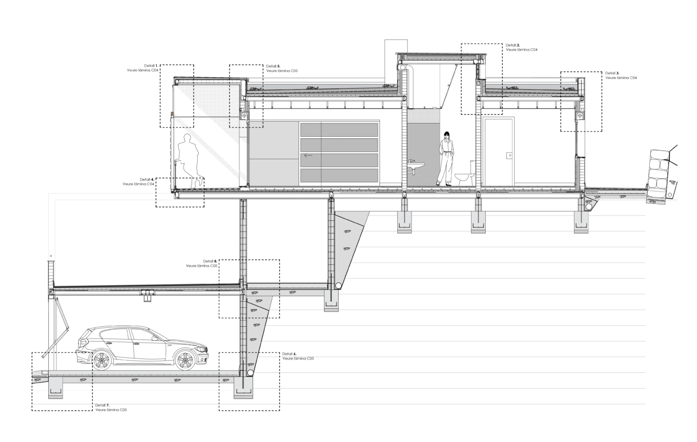
Els clients d’aquest projecte es van comprar un terreny amb força pendent, sent conscients de les implicacions que això podia comportar a nivell d’implantació. Tot i així, tenien molt clar que volien situar tot el programa habitable en una sola planta i, a més a més, ala zona més elevada del terreny per a gaudir de les vistes sobre la muntanya.
Amb aquestes premisses, s’hadissenyat una planta quadrangular amb un nucli central de serveis que separa les zones de nit i de dia. Annex als espais de dia, també s’ha projectat un porxat longitudinal que protegeix de la radiació solar i permet gaudir d’un espai intermedi entre l’interior i l’exterior.













