
Situación: Vallgorguina
Actuación: Obra nueva
Año: 2022
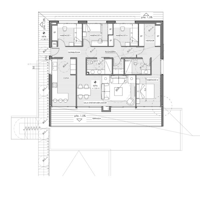
En este proyecto la topografía ha sido un elemento clave para diseñar la volumetría del edificio, dado que todo programa de la vivienda tenía que resolverse en una única planta.
La vivienda se ha diseñado a partir de un prisma cuadrangular que distribuye el programa alrededor de un núcleo central de servicios. La zona de día, encarada al jardín, se enfatiza con un porche longitudinal que desdibuja el límite entre el interior y el exterior.
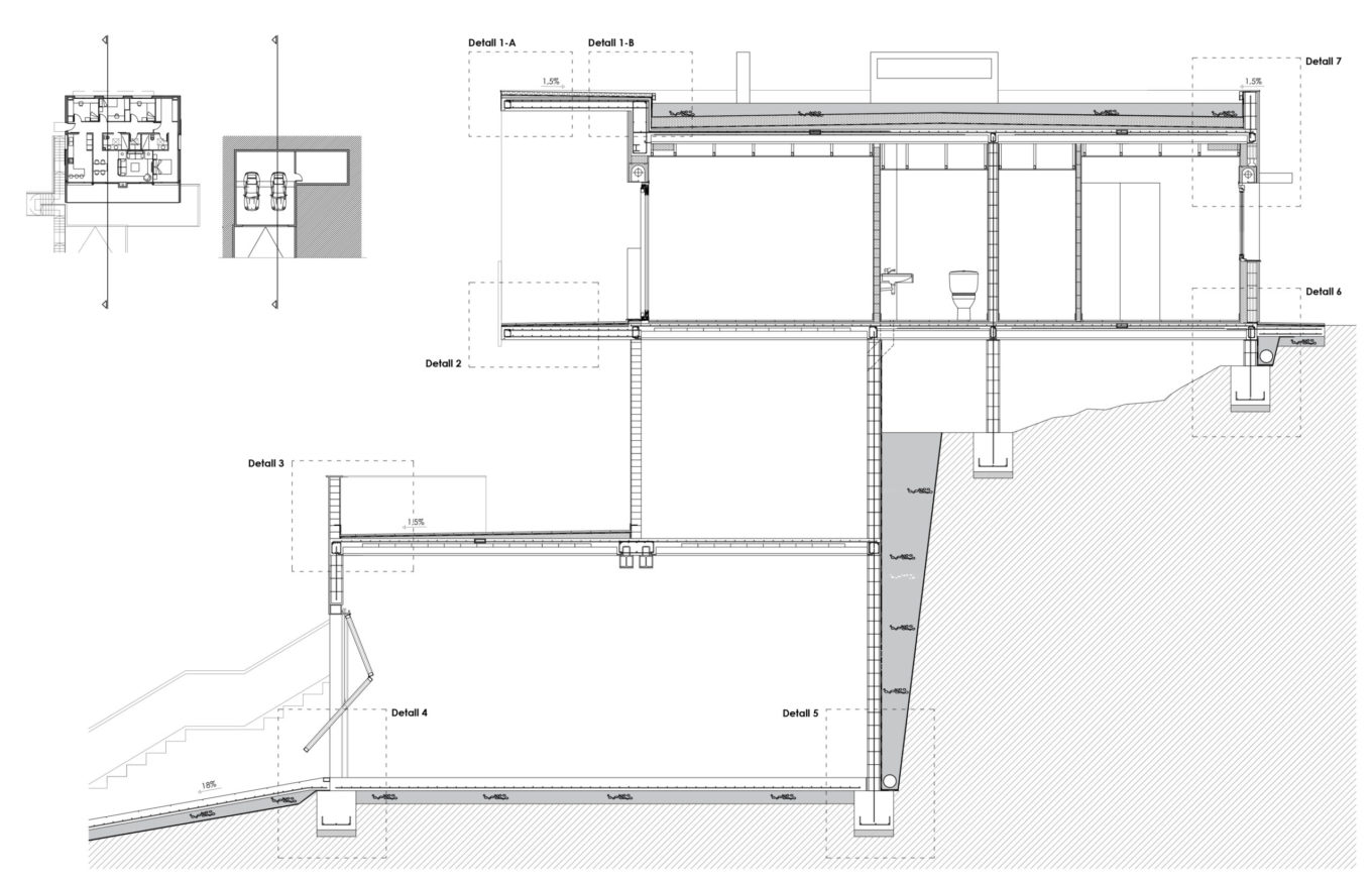
Dado que el edificio se ha situado en la zona más elevada de la finca, se ha podido diseñar una zona de recreo en el centro de la parcela. En este mismo nivel se ha proyectado un cuerpo semienterrado que, en el día de mañana, podrá aprovecharse para ampliar la vivienda.












