Situación: Santa Maria de Palautordera
Actuación: Obra nueva
Año: 2016-2018
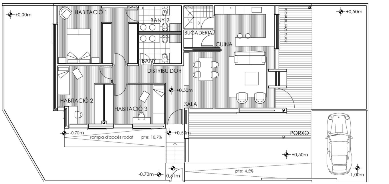
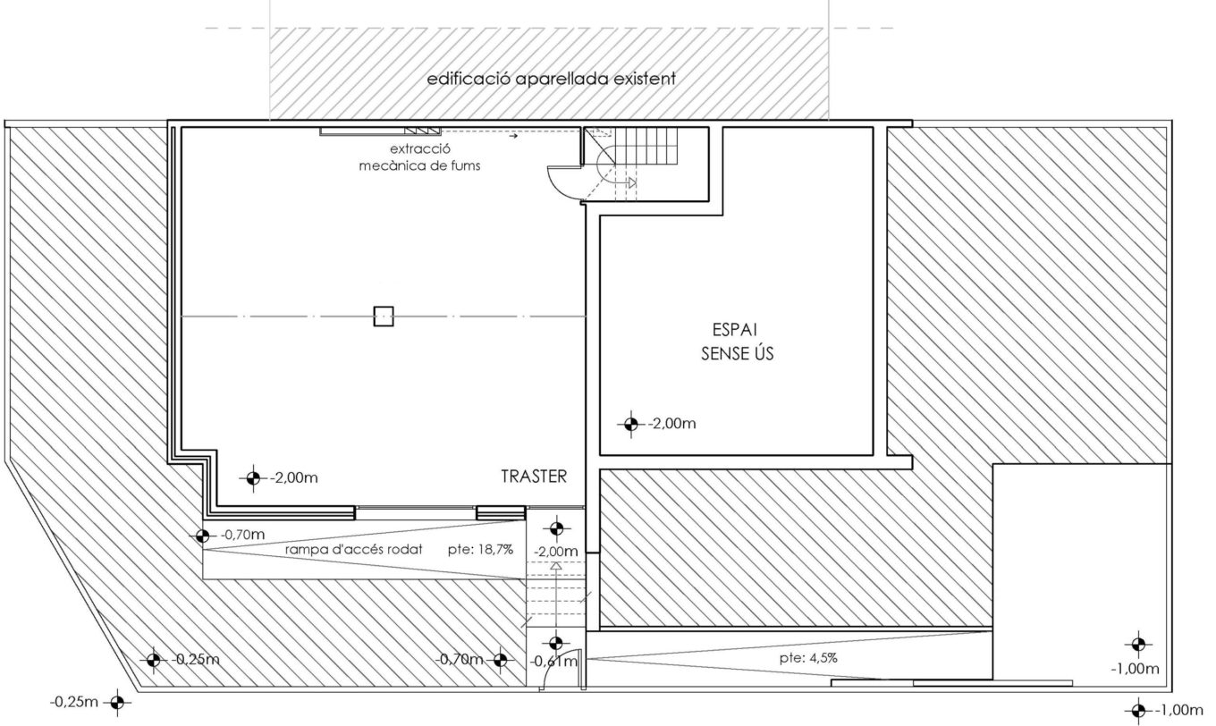
Los clientes de este proyecto tenían claro que querían resolver el programa de su vivienda en una sola planta. La nueva vivienda se tenía que situar en una parcela en chaflán, adosándose en un edificio ya construido de dos plantas. En este sentido, la vivienda se ha configurado a partir de un volumen en forma de cuña para cubrir al máximo el edificio vecino, consiguiendo que la vivienda tenga su propia presencia.
Esta configuración volumétrica también ha permitido diseñar en el interior espacios a doble altura que son iluminados naturalmente a través de grandes lucernarios que atraviesan la cubierta. Una solución que, sin duda, dan a los diferentes espacios una atmósfera especial.


















