
Situación: Sant Celoni
Actuación: Reforma y rehabilitación
Año: 2017-2021
Reforma y rehabilitación del antiguo edificio Puigdollers para adecuarlo como nueva sede de Asuntos Sociales y Vivienda y crear, así, un nuevo espacio municipal donde poder atender la ciudadanía.
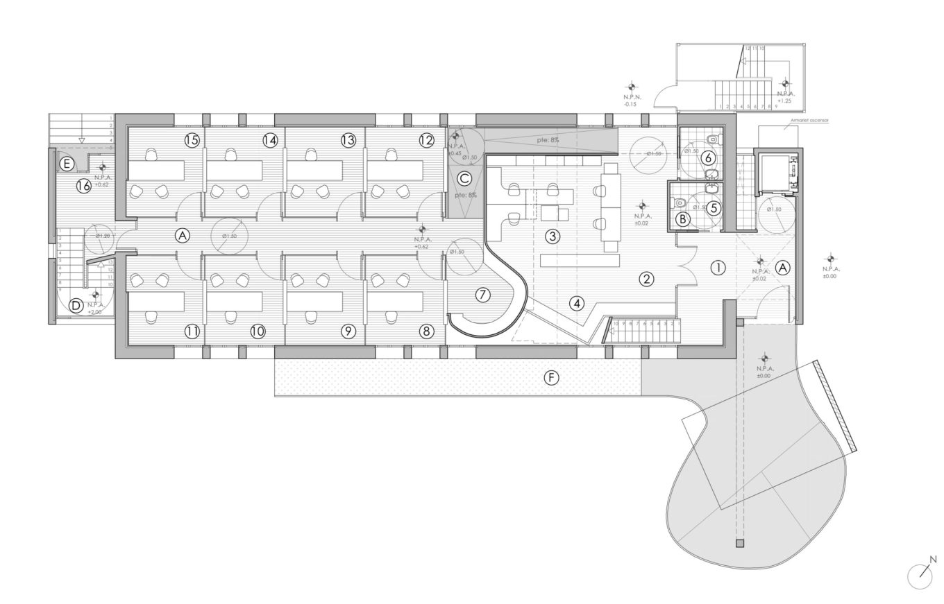
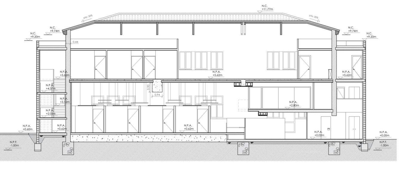
El proyecto se ha ubicado en el cuerpo principal del edificio, un volumen rectangular de dos plantas coronado con una cubierta de madera, manteniendo el lenguaje arquitectónico de la envolvente.
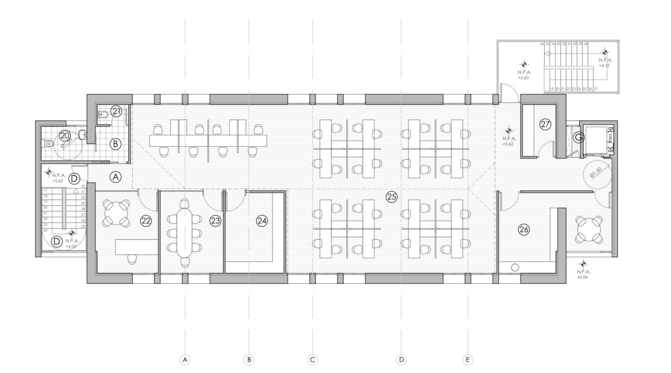
En la planta baja se han situado los despachos de atención a la ciudadanía, por lo que en este nivel se han diseñado los espacios con un carácter más privado. En la planta primera, por lo contrario, se sitúa la sala de trabajo interna, por lo que se ha planteado un espacio más abierto y diáfano. Entre ambas plantas se ha añadido un nivel intermedio, donde se ubica una sala de reuniones con vistas sobre el nivel inferior.
A los extremos del cuerpo principal también se han planteado dos nuevos núcleos de acceso que permiten la comunicación interna entre las plantas del edificio.


















