
Situación: Corbera de Llobregat
Actuación: Obra nueva
Año: 2021-2023
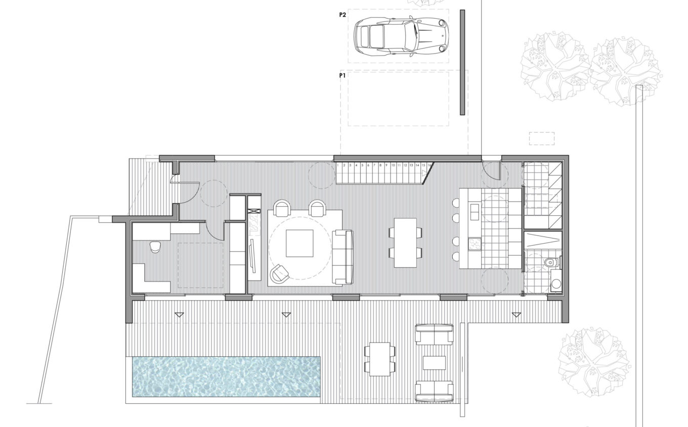
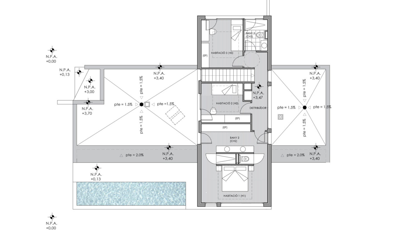
Proyecto ejecutivo de una vivienda configurada a partir de dos volúmenes rectangulares sobrepuestos de líneas sencillas y modernas. Gracias a esta disposición, la vivienda disfruta de grandes porches que dan a la construcción un carácter majestuoso.
En la planta baja del edificio se establece el programa de día, definiendo espacios diáfanos y luminosos que participan del espacio de terraza exterior. En la planta primera, por lo contrario, se sitúa el programa de noche, estableciendo espacios más fragmentados y con aperturas puntuales.
El edificio se ha construido a partir del sistema ‘Steel Frame’, un tipo de construcción rápida y eficiente que se establece como una alternativa a la obra tradicional.























