
Actuación: Modelo de vivienda prefabricada
Año: 2022
Hemos tenido la oportunidad de diseñar un modelo de vivienda prefabricada para una casa que comercializa viviendas de madera.
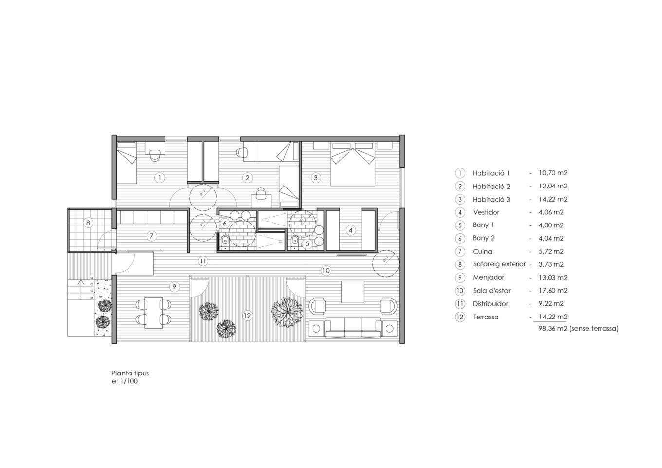
El diseño de la vivienda se plantea en forma de C, estableciendo el programa residencial alrededor de un núcleo de servicios. En el centro de la propuesta, además, se ha establecido un porche que protege de la radiación solar y permite que los espacios disfruten de un ámbito intermedio.
Sin duda, esta propuesta es ideal para la gente que busca una vivienda compacta que incorpora todas las prestaciones del hogar en una sola planta. Además de estos beneficios, también se debe considerar que las viviendas prefabricadas permiten optimizar los recursos y reducir el tiempo y los procesos de la construcción.





