
Situación: Bescanó
Actuación: Reforma de edificio
Año: 2019-2020
Los clientes de este proyecto adquirieron un inmueble configurado en tres plantas, definidas por unos espacios interiores bastante sectorizados y oscuros.
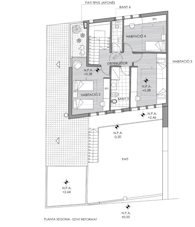
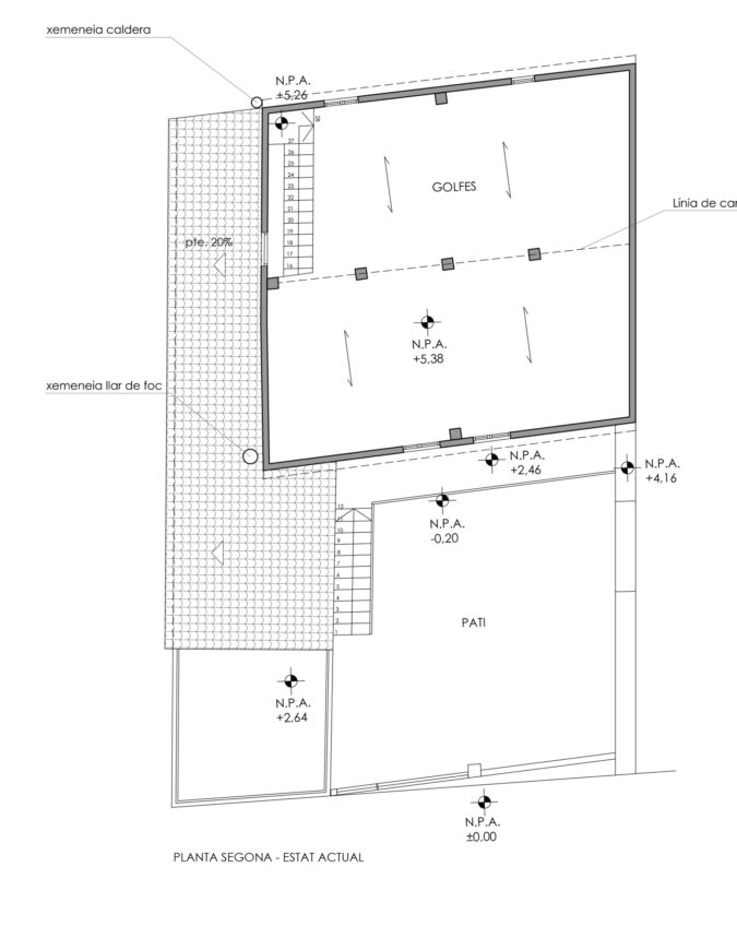
Con la excusa de plantear una nueva distribución, el proyecto propone una reforma integral del edificio que pretende abrir y unificar los espacios, además de proponer el aprovechamiento de la planta bajo-cubierta, originalmente en desuso.
La propuesta también plantea intervenir a la fachada para dar coherencia al conjunto del edificio, estableciendo un nuevo lenguaje compositivo.





















